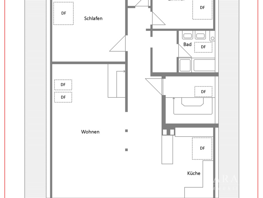
3 Zimmer-DG-Wohnung mit ausgebauter Bühne
70794 Filderstadt
4 Zimmer
ca. 88 m2 Wohnfläche
1977 Baujahr
1.100 Euro mtl.
A+
A
B
C
D
E
F
G
H
101 kWh/(m²*a)
Ausstattung
Einbauküche
Keller
Waschküche
Objektnummer:
M 154.916
Etage:
1
Etagenanzahl:
2
Schlafzimmeranzahl:
2
Anzahl Bäder:
1
Bezugsfrei ab:
sofort
Objektbeschreibung
Hier erwartet Sie eine großzügige 3 Zimmer-Wohnung im Dachgeschoss eines Zweifamilienhauses.
Die Wohnung besticht durch den großen Wohnbereich mit offener Küche.
Zusätzlich zur Wohnung steht Ihnen der ausgebaute Dachboden über der gesamten Wohnung zur Verfügung, der allerdings keine Wohnfläche ist. Den Dachboden erreichen Sie bequem über eine Treppe.
Interesse? Dann freuen wir uns auf Ihre Kontaktanfrage.
Die Wohnung besticht durch den großen Wohnbereich mit offener Küche.
Zusätzlich zur Wohnung steht Ihnen der ausgebaute Dachboden über der gesamten Wohnung zur Verfügung, der allerdings keine Wohnfläche ist. Den Dachboden erreichen Sie bequem über eine Treppe.
Interesse? Dann freuen wir uns auf Ihre Kontaktanfrage.
Lage
Die Wohnung befindet sich in ruhiger Wohnlage von Bonlanden.
Ein Bushaltestelle, Einkaufsmöglichkeiten und das Fildorado sind bequem zu erreichen.
Ein Bushaltestelle, Einkaufsmöglichkeiten und das Fildorado sind bequem zu erreichen.
Energie
Energieausweis:
Energiebedarfsausweis
Heizungsart:
Zentralheizung
Heizungsbefeuerung:
Öl
Energieverbrauch:
101 kWh/(m²*a)
Energieeffizienz:
D
Kosten
Mietpreis:
1.100 Euro (kalt)
Nebenkosten:
325 Euro
Miete Gesamt:
1.425 Euro
Kaution:
3.300 Euro
Sonstiges
Sämtliche Angaben beruhen auf Angaben des Vermieters und wurden von GARANT nicht geprüft. Hierfür haftet GARANT nicht.
Energiebedarfsausweis
Energiekennwert: 101,04 kWh/(qm*a)
Energieeffizienz: Klasse D (<130)
Heizung: Zentralheizung mit Öl
Baujahr laut Energieausweis: 1977