Etagenwohnung
89075 Ulm
3 Zimmer
ca. 72 m2 Wohnfläche
1970 Baujahr
3,57 % Provision inkl. ges. MwSt.
325.000 Euro
A+
A
B
C
D
E
F
G
H
89 kWh/(m²*a)
Ausstattung
Keller
Balkon
Fahrradkeller
Objektnummer:
780.017
Etage:
3
Etagenanzahl:
3
Schlafzimmeranzahl:
2
Anzahl Bäder:
1
Garage/Stellplatz:
1 Tiefgarage
Bezugsfrei ab:
nach Absprache
* 3 Zimmer-Wohnung
* Tageslichtbad
* großzügiger Balkon
* 3-fach verglaste Kunststofffenster
* Wohnanlage vollumfänglich saniert
* TG-Stellplatz
* Kellerraum
* Tageslichtbad
* großzügiger Balkon
* 3-fach verglaste Kunststofffenster
* Wohnanlage vollumfänglich saniert
* TG-Stellplatz
* Kellerraum
Objektbeschreibung
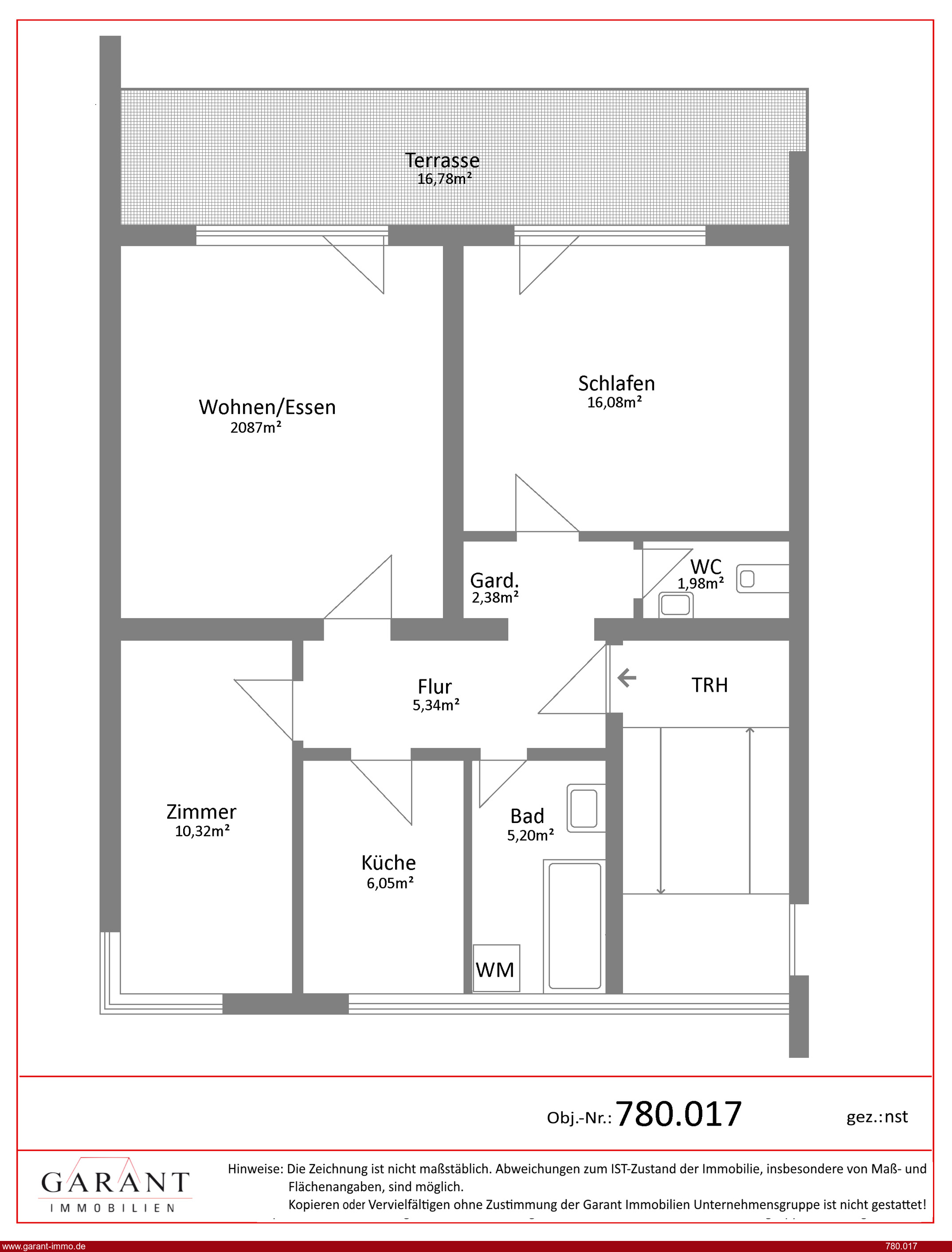
Herzlich Willkommen in dieser hellen und freundlichen 3-Zimmer-Wohnung am Ulmer Safranberg.
Die Wohnung befindet sich im 3. Obergeschoss eines gepflegten Mehrfamilienhauses, welches die letzten Jahre vollumfänglich saniert wurde.
Der Balkon ist westlich ausgerichtet und lädt zum Entspannen und Verweilen mit Blick in den begrünten Innenhof ein.
Das Tageslichtbad ist mit einem Waschbecken und einer Badewanne ausgestattet - das WC ist separat.
Ein Tiefgaragenstellplatz rundet das Angebot ab und sorgt für einen sicheren und wettergeschützten Platz für Ihr Fahrzeug.
Derzeit ist die Wohnung seit dem 01.04.2025 vermietet.
* Ergreifen Sie Ihre Chance und kontaktieren Sie uns! *
Die Wohnung befindet sich im 3. Obergeschoss eines gepflegten Mehrfamilienhauses, welches die letzten Jahre vollumfänglich saniert wurde.
Der Balkon ist westlich ausgerichtet und lädt zum Entspannen und Verweilen mit Blick in den begrünten Innenhof ein.
Das Tageslichtbad ist mit einem Waschbecken und einer Badewanne ausgestattet - das WC ist separat.
Ein Tiefgaragenstellplatz rundet das Angebot ab und sorgt für einen sicheren und wettergeschützten Platz für Ihr Fahrzeug.
Derzeit ist die Wohnung seit dem 01.04.2025 vermietet.
* Ergreifen Sie Ihre Chance und kontaktieren Sie uns! *
Lage
Der Ulmer Safranberg gilt als attraktive, ruhige Wohnlage im Osten der Stadt. Von hier aus bieten sich grünnahe, komfortable Wohnbedingungen mit guter Anbindung an das Stadtzentrum. Die Umgebung zeichnet sich durch hochwertige Villen, gepflegte Wohnhäuser und eine ruhige Infrastruktur aus. Einkaufsmöglichkeiten, Schulen und medizinische Versorgung sind in der Nähe vorhanden und fußläufig erreichbar. Die Anbindung an den ÖPNV ist gut, verschiedene Buslinien fahren regelmäßig in Richtung Innenstadt und Bahnhof.
Kosten
Kaufpreis:
325.000 Euro
Preis/m²:
4.513,89 Euro
Hausgeld:
455,40 Euro
Provision für Käufer:
3,57 % (Prozent des Kaufpreises inkl. Mwst ¹)
Energie
Energieausweis:
Energiebedarfsausweis
Heizungsart:
Zentralheizung
Heizungsbefeuerung:
Fernwärme
Energieverbrauch:
89 kWh/(m²*a)
Energieeffizienz:
C
Sonstiges
Sämtliche Angaben beruhen auf Angaben des Verkäufers und wurden von GARANT nicht geprüft. Hierfür haftet GARANT nicht.
¹ inkl. 19% Mwst. Deutschland (20% in Österreich)
¹ inkl. 19% Mwst. Deutschland (20% in Österreich)
Energiebedarfsausweis
Energiekennwert: 89,00 kWh/(qm*a)
Energieeffizienz: Klasse C (<100)
Heizung: Zentralheizung mit Fernwärme
Baujahr laut Energieausweis: 1970
1 x Tiefgarage