3 Zimmer-Hochparterre-Wohnung
86152 Augsburg
3 Zimmer
ca. 57 m2 Wohnfläche
1953 Baujahr
3,57 % Provision inkl. ges. MwSt.
228.000 Euro
A+
A
B
C
D
E
F
G
H
181 kWh/(m²*a)
Ausstattung
Einbauküche
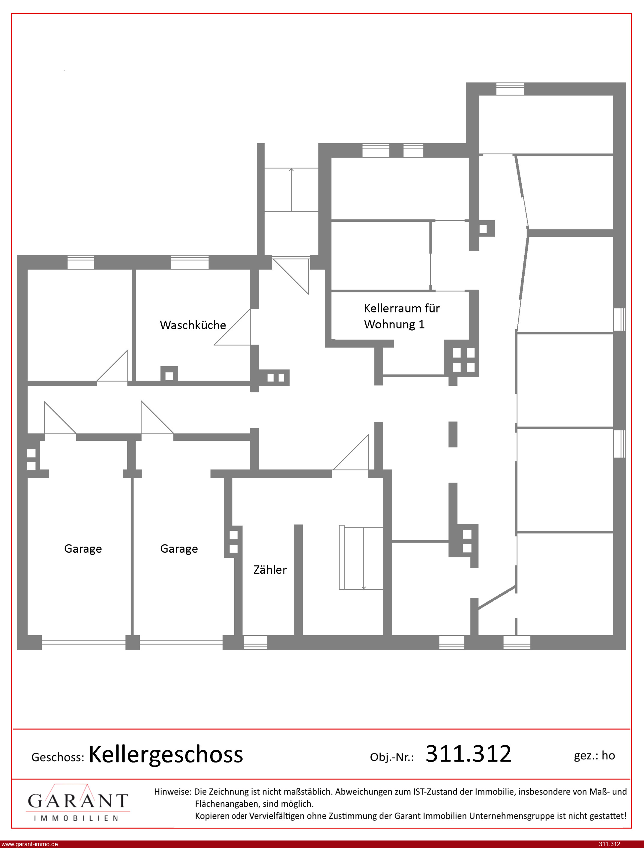
Keller
Trockenraum
Objektnummer:
311.312
Etagenanzahl:
4
Schlafzimmeranzahl:
2
Anzahl Bäder:
1
Bezugsfrei ab:
nach Absprache
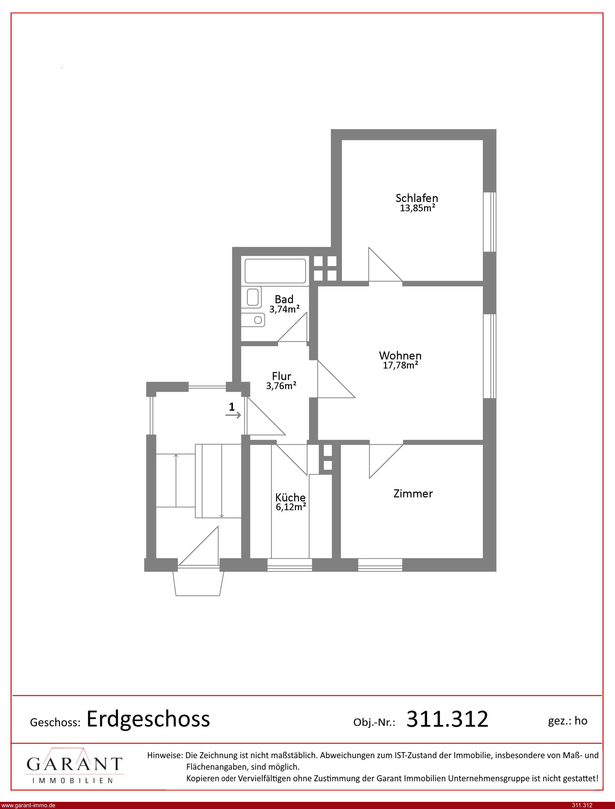
Objektbeschreibung
Zum Verkauf steht diese praktisch geschnittene 3 Zimmer-Wohnung in ruhiger, verkehrsgünstiger Lage. Wir befinden uns im Erdgeschoss eines 1953 erbauten und gut erhaltenen Mehrfamilienhauses. Am Haus wurden regelmäßig Modernisierungen durchgeführt, sodass kein Renovierungsstau besteht. Die Wohnung verfügt über ca. 57 qm Wohnfläche. Diese setzen sich aus drei Zimmern, einem Badezimmer und einer Küche zusammen. Die genaue Raumaufteilung entnehmen Sie bitte dem Grundriss. Die Wohnung ist aktuell vermietet, die Miete beträgt derzeit 700,- EUR monatlich zzgl. 150,- EUR Betriebskostenvorauszahlung. Aufgrund der guten Lage und der sehr guten Vermietbarkeit, z.B. auch als WG, bietet sich die Immobilie als ideale Kapitalanlage an.
Greifen Sie zum Hörer und vereinbaren Sie Ihre persönliche *Entdeckungstour*.
Lassen Sie sich diese Immobilie nicht entgehen und vereinbaren Sie mit mir einen Besichtigungstermin unter 0821/43 98 70-0.
Greifen Sie zum Hörer und vereinbaren Sie Ihre persönliche *Entdeckungstour*.
Lassen Sie sich diese Immobilie nicht entgehen und vereinbaren Sie mit mir einen Besichtigungstermin unter 0821/43 98 70-0.
Lage
Die Wohnung befindet sich in einer verkehrsberuhigten Anliegerstraße im Stadtteil Innenstadt in Augsburg. Alle Geschäfte des täglichen Bedarfs sind bequem und teilweise zu Fuß erreichbar. Ärzte, Schulen und Kindergarten finden Sie in direkter Umgebung. Jede Menge Freizeitangebote runden die perfekte Infrastruktur von Augsburg ab. In ca. 10 Minuten erreichen Sie das Stadtzentrum von Augsburg und in ca. 15 Minuten die A8.
Kosten
Kaufpreis:
228.000 Euro
Preis/m²:
4.000 Euro
Hausgeld:
176 Euro
Provision für Käufer:
3,57 % (Prozent des Kaufpreises inkl. Mwst ¹)
Energie
Energieausweis:
Energiebedarfsausweis
Heizungsart:
Zentralheizung
Heizungsbefeuerung:
Gas
Energieverbrauch:
181 kWh/(m²*a)
Energieeffizienz:
F
Sonstiges
Sämtliche Angaben beruhen auf Angaben des Verkäufers und wurden von GARANT nicht geprüft. Hierfür haftet GARANT nicht.
¹ inkl. 19% Mwst. Deutschland (20% in Österreich)
¹ inkl. 19% Mwst. Deutschland (20% in Österreich)
Energiebedarfsausweis
Energiekennwert: 181,70 kWh/(qm*a)
Energieeffizienz: Klasse F (<200)
Heizung: Zentralheizung mit Gas
Baujahr laut Energieausweis: 1953
Gerne unterstütze ich Sie auch bei der Suche nach der für Sie passenden Finanzierung.
Sie haben selber eine Immobilie zu verkaufen oder kennen jemanden, der seine Immobilie verkaufen möchte? Dann sind wir der ideale Ansprechpartner!
Wir bieten nicht nur umfassende und professionelle Unterstützung beim Verkauf Ihrer Immobilie, sondern auch attraktive Provisionen für Tippgeber. Wenn Sie uns einen Eigentümer empfehlen, der seine Immobilie über uns verkauft, belohnen wir Ihre Vermittlung mit einer Tippgeberprovision.