Mehrfamilienhaus

94234 Viechtach

20 Zimmer

ca. 508 m2 Wohnfläche

1995 Baujahr

3,57 % Provision inkl. ges. MwSt.

1.400.000 Euro

A+
A
B
C
D
E
F
G
H
122 kWh/(m²*a)

Aus­stat­tung

Keller
Balkon
Vermietet
Objektnummer:
622.024
Grundstückfläche:
ca. 1500 m2
Zimmeranzahl:
20
Garage/Stellplatz:
7 Carport
Bezugsfrei ab:
vermietet
- großes Carport
- Balkon bzw. Terrasse an jeder Wohnung
- Garten

Objekt­beschreibung

Angeboten wird hier ein top gepflegtes 7-Parteienhaus in Viechtach.
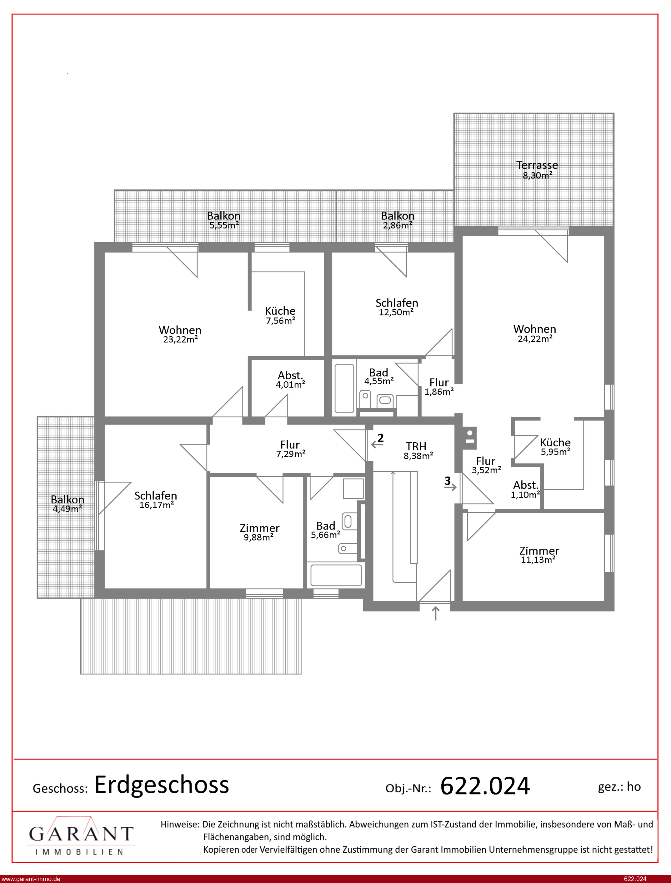
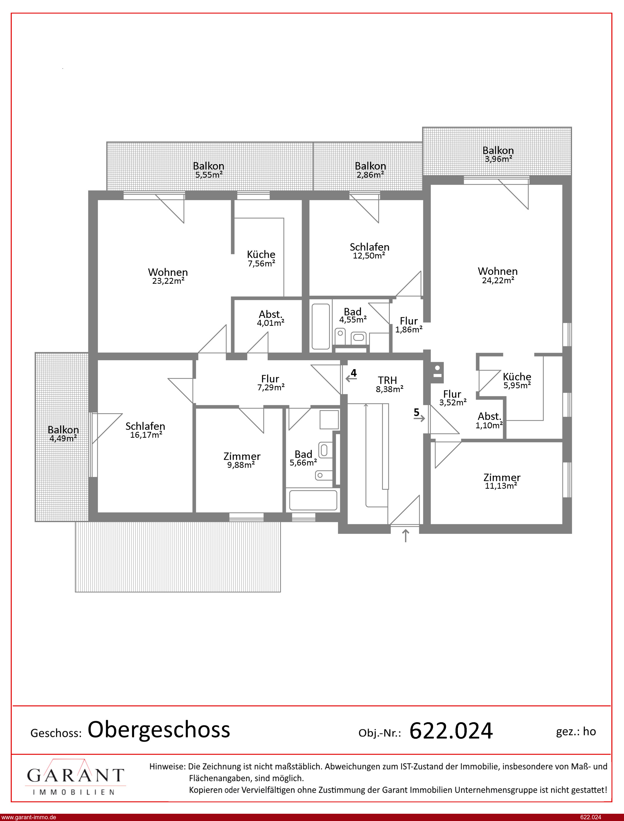
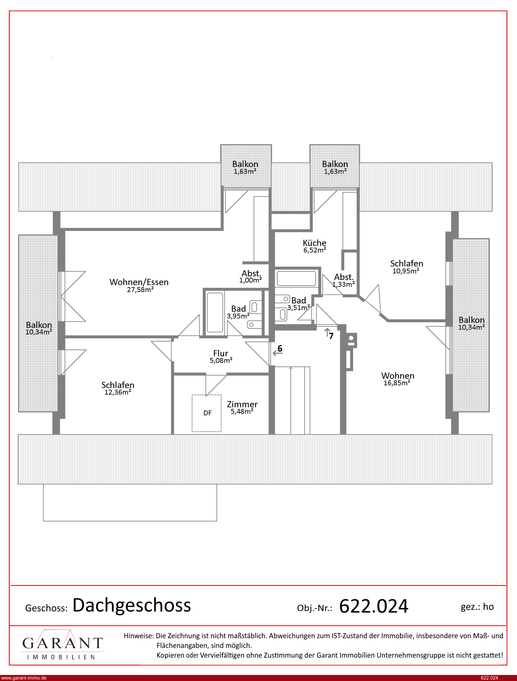
Gebaut wurde es 1995 in Massivbauweise. Auf vier Ebenen verteilen sich
die sieben gut vermieteten Wohnungen. Die Wohnungen sind ungefähr zwischen 44 und 100 m² groß.
Jeder Wohnung ist ein Kellerabteil zugeteilt.
Jede Wohnung verfügt entweder über eine Terrasse oder einen Balkon.
Ein Hausmeister, der ebenfalls im Haus wohnt, kümmert sich zuverlässig
um die Außenanlage und um alles was täglich anfällt.
Für die Mieter steht ein großer Carport zur Verfügung.

Voll vermietet - Top gepflegt!

Lage

Viechtach bietet seinen Bewohnern alles, was man für den täglichen Bedarf benötigt. Ärzte, Geschäfte, Kindergarten und Schulen sind in unmittelbarer Umgebung vorhanden.

Kosten

Kaufpreis:
1.400.000 Euro
Preis/m²:
2.755,91 Euro
Provision für Käufer:
3,57 % (Prozent des Kaufpreises inkl. Mwst ¹)

Energie

Energieausweis:
Energieverbrauchsausweis
Heizungsart:
Zentralheizung
Heizungsbefeuerung:
Öl
Energieverbrauch:
122 kWh/(m²*a)
Energieeffizienz:
D

Sonstiges

Sämtliche Angaben beruhen auf Angaben des Verkäufers und wurden von GARANT nicht geprüft. Hierfür haftet GARANT nicht.
¹ inkl. 19% Mwst. Deutschland (20% in Österreich)

Energieverbrauchsausweis
Energiekennwert: 122,00 kWh/(qm*a)
Energieeffizienz: Klasse D (<130)
Heizung: Zentralheizung mit Öl
Baujahr laut Energieausweis: 1995

7 x Carport