Einfamilienhaus mit Einliegerwohnung

94234 Viechtach

6 Zimmer

ca. 290 m2 Wohnfläche

1990 Baujahr

3,57 % Provision inkl. ges. MwSt.

450.000 Euro

A+
A
B
C
D
E
F
G
H
112 kWh/(m²*a)

Aus­stat­tung

Gäste-WC
Einbauküche
Keller
Einliegerwohnung
Balkon
Vermietet
Objektnummer:
622.016
Grundstückfläche:
ca. 1200 m2
Zimmeranzahl:
6
Schlafzimmeranzahl:
4
Anzahl Bäder:
3
Garage/Stellplatz:
2 Garage
Bezugsfrei ab:
31.07.2026
- Einbauküchen
- Doppelgarage
- Einliegerwohnung
- Apartement
- Balkone
- Terrasse mit Markise
- Garten
- Keller

Objekt­beschreibung

Planen Sie etwas Zeit ein, wenn Sie zur Besichtigung dieser besonderen Immobilie kommen!

Es erwartet Sie eine moderne, aber auch sehr gemütliche Hauptwohnung, die Küche, Esszimmer, Wohnzimmer und Gäste-WC im Erdgeschoss bereit hält. Vom Wohnzimmer aus haben Sie Zutritt zum Balkon, der ihnen eine herrliche Sicht ins Grüne ermöglicht!

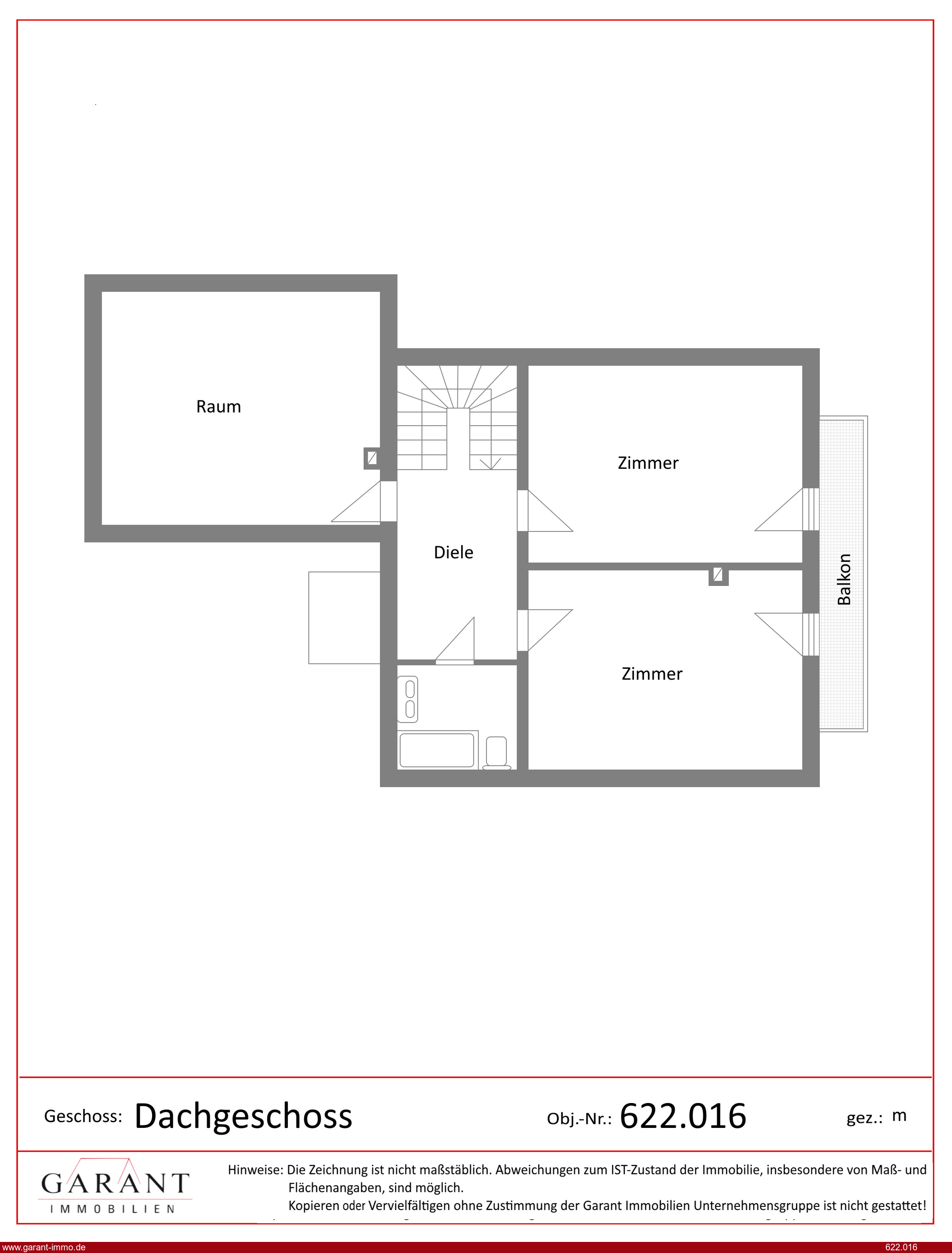
Über eine stilvolle Holztreppe gelangt man in das ausgebaute Dachgeschoss. Schlafzimmer, Kinderzimmer, Büro und Hauptbad mit Wanne, Waschtisch und WC erwartet sie hier.

Ein kleines Apartment ist von der Hauptwohnung aus begehbar. Ein größerer Raum mit eigenem Badezimmer könnte das Reich eines Teenies sein oder auch als Gästezimmer dienen!

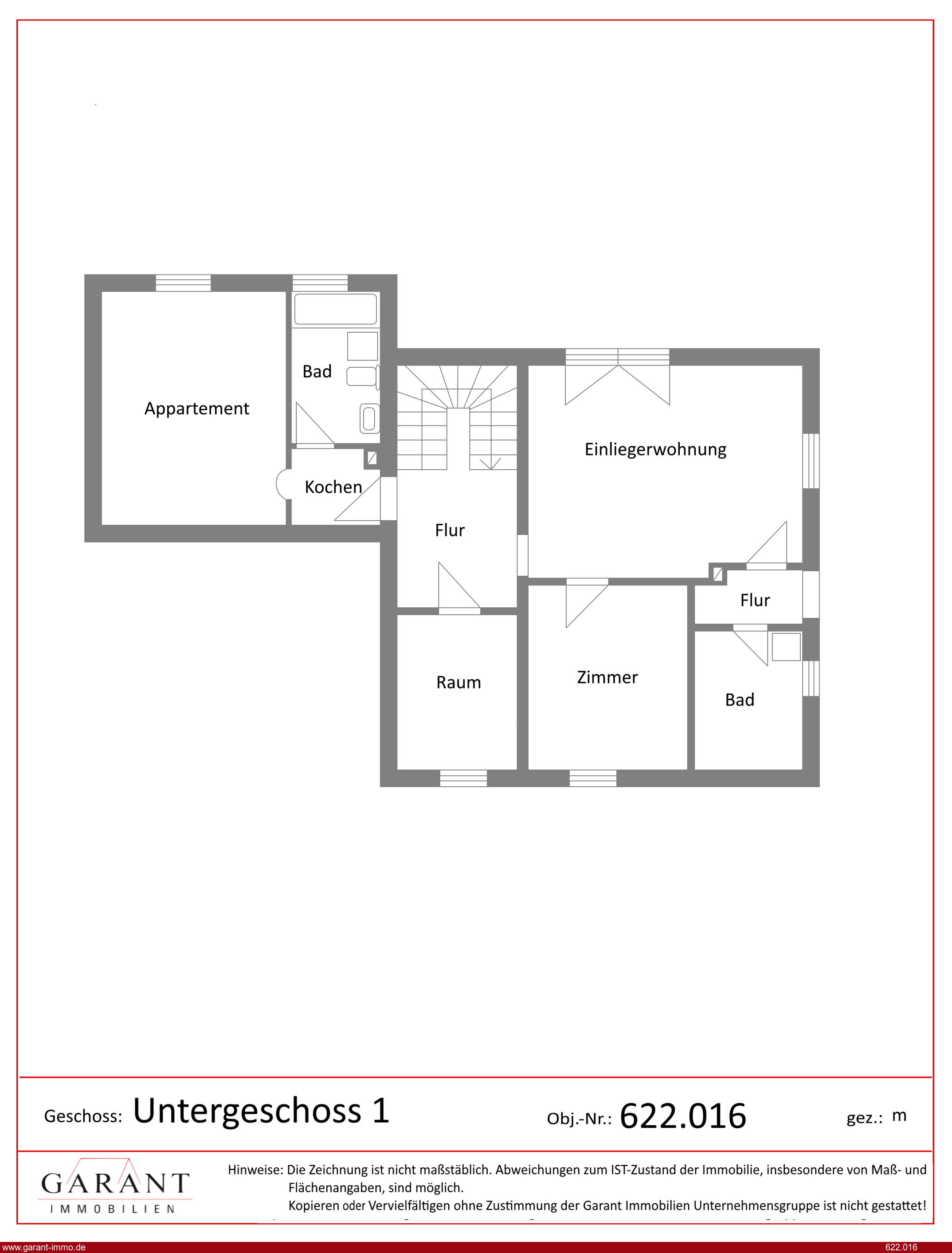
Das Haus ist komplett unterkellert und bietet dort noch jede Menge Stauraum.

Eine Einliegerwohnung, die akutell vermietet und von außen zugänglich ist, nimmt einen Teil des Untergeschosses ein. Diese besteht aus einer Wohn-, Ess-/Küche, Schlafzimmer und Badezimmer.
Es handelt sich hier um ein Hanghaus, daher hat die Einliegerwohnung einen Zugang zum Garten.

Der Garten teilt sich auf mehrere Ebenen auf und wird durch verschiedene Steinmauern gestützt. Unterhalb des Grundstücks befindet sich landwirtschaftliche Fläche.

Zum Haus gehört noch eine Doppelgarage, die ans Haus angebaut ist und dessen Obergeschoss ebenfalls zur Wohnfläche ausgebaut wurde und zur Hauptwohnung gehört.

Vorm Haus befindet sich eine schön angelegte Terrasse. Das Grundstück ist mit einem sehr hochwertigen Zaun umrandet.

Aktuell befinden sich zwei Mietparteien im Haus. Wobei die Hauptwohnung zum 31.07.2026 frei wird.

Wir freuen uns, Sie vor Ort begrüßen zu dürfen!

Einfamilienhaus mit Einliegerwohnung und Apartement!

Lage

Das Haus steht in einer ruhigen Siedlung nicht unweit vom Zentrum von Viechtach.
Viechtach bietet ihnen alles was sie für den täglichen Bedarf benötigen. Auch sämtliche Schularten sind vor Ort. Die Verkehrsanbindung durch die vorbei führende B85 ist sehr gut. Regen, Deggendorf und Cham erreicht man mit dem Auto in Kürze.

Kosten

Kaufpreis:
450.000 Euro
Preis/m²:
1.551,72 Euro
Provision für Käufer:
3,57 % (Prozent des Kaufpreises inkl. Mwst ¹)

Energie

Energieausweis:
Energieverbrauchsausweis
Heizungsart:
Zentralheizung
Heizungsbefeuerung:
Gas
Energieverbrauch:
112 kWh/(m²*a)
Energieeffizienz:
D

Sonstiges

Sämtliche Angaben beruhen auf Angaben des Verkäufers und wurden von GARANT nicht geprüft. Hierfür haftet GARANT nicht.
¹ inkl. 19% Mwst. Deutschland (20% in Österreich)

Energieverbrauchsausweis
Energiekennwert: 112,00 kWh/(qm*a)
Energieeffizienz: Klasse D (<130)
Heizung: Zentralheizung mit Gas
Baujahr laut Energieausweis: 1988

2 x Garage, 2 x Stellplatz außen