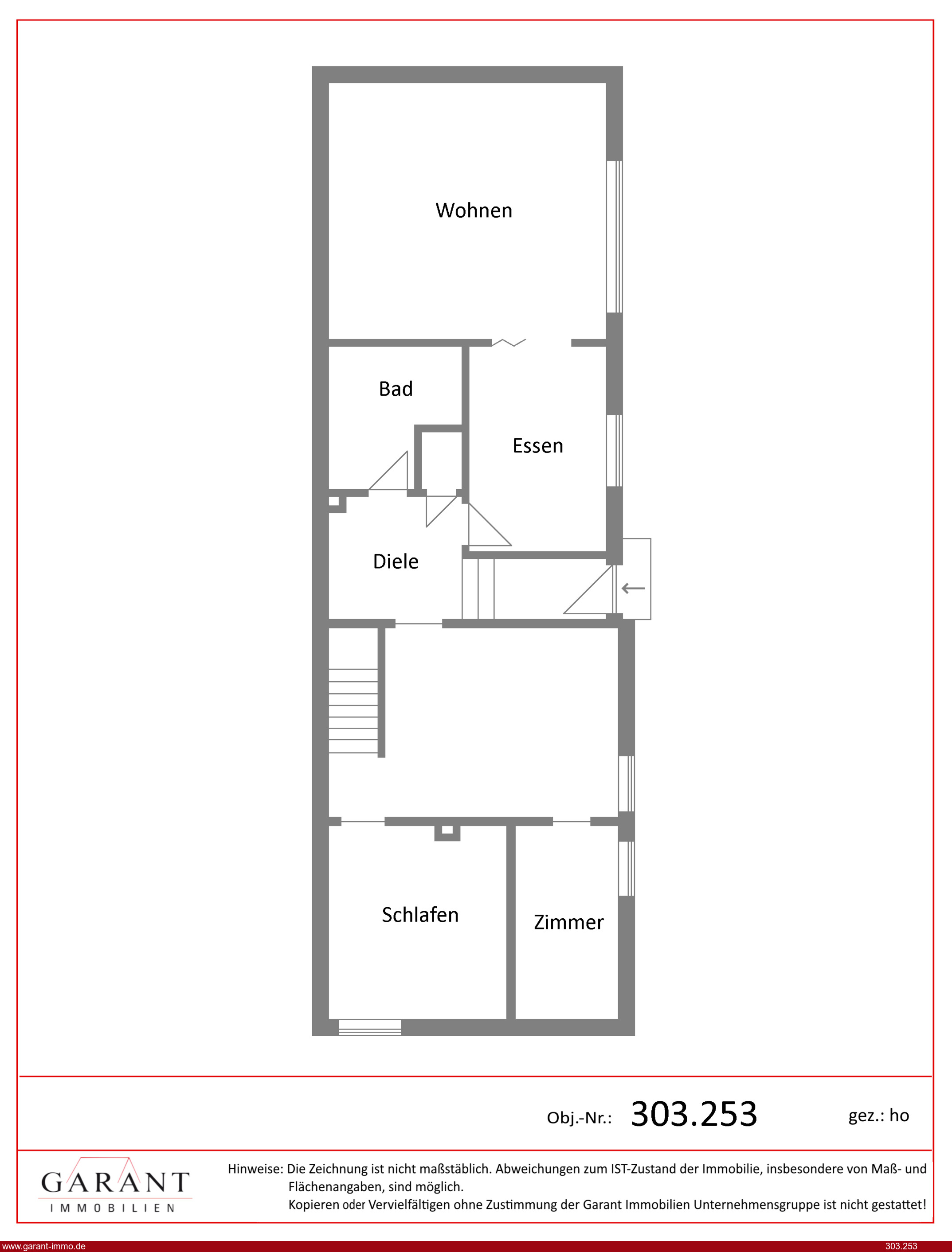
Doppelhaushälfte mit Garage
95126 Schwarzenbach an der Saale
4 Zimmer
ca. 113 m2 Wohnfläche
1932 Baujahr
4,76 % Provision inkl. ges. MwSt.
148.000 Euro
A+
A
B
C
D
E
F
G
H
149 kWh/(m²*a)
Ausstattung
Gäste-WC
Einbauküche
Keller
Objektnummer:
303.253
Grundstückfläche:
ca. 1236 m2
Zimmeranzahl:
4
Schlafzimmeranzahl:
3
Anzahl Bäder:
1
Garage/Stellplatz:
1 Garage
Bezugsfrei ab:
nach Absprache
* Komplette Küche-Essbereich mit Eckbank
* Möblierung auf Wunsch
* Gartenhaus
* Garage
* Möblierung auf Wunsch
* Gartenhaus
* Garage
Objektbeschreibung
Dieses Haus bietet idealen Platz für eine kleine Familie und hat im Anbau von 1969 großes Erweiterungspotenzial. Der Garten liegt absolut ruhig am Ende der Stichstraße und lädt zum Entspannen, Spielen und Grillen ein. Gepflegt und bezugsfertig kann das Objekt mit geringem Aufwand direkt nach Kauf bezogen werden. Die Heizung besteht aus Gas und Öl Ofen Heizung, bei Bedarf lässt sich mit Unterstützung eines Energieberaters eine kostengünstigere, zukunftsorientierte Lösung finden. Zusätzlich gehören eine Garage und ein großzügiger Garten zum TOP Preis - eine attraktive Kombination für Eigentümer, die Wert auf Ruhe, Platz und Potential legen.
Wollen Sie besichtigen- gerne, rufen Sie uns an, Büro HOF 09281 540 134
Wollen Sie besichtigen- gerne, rufen Sie uns an, Büro HOF 09281 540 134
Lage
Eine sehr gute Infrastruktur, Einkauf, Kita, Schule und Ärzte alles in Schwarzenbach an der Saale in
wenigen Minuten erreichbar. Bahn und Busverbindung optimal sowie auch Kultur und Freizeit Angebote
sind vorhanden, eine aufstrebende Stadt in Franken.
wenigen Minuten erreichbar. Bahn und Busverbindung optimal sowie auch Kultur und Freizeit Angebote
sind vorhanden, eine aufstrebende Stadt in Franken.
Kosten
Kaufpreis:
148.000 Euro
Preis/m²:
1.309,73 Euro
Provision für Käufer:
4,76 % (Prozent des Kaufpreises inkl. Mwst ¹)
Energie
Energieausweis:
Energiebedarfsausweis
Heizungsart:
Ofenheizung
Heizungsbefeuerung:
Gas
Energieverbrauch:
149 kWh/(m²*a)
Energieeffizienz:
E
Sonstiges
Sämtliche Angaben beruhen auf Angaben des Verkäufers und wurden von GARANT nicht geprüft. Hierfür haftet GARANT nicht.
¹ inkl. 19% Mwst. Deutschland (20% in Österreich)
¹ inkl. 19% Mwst. Deutschland (20% in Österreich)
Energiebedarfsausweis
Energiekennwert: 149,30 kWh/(qm*a)
Energieeffizienz: Klasse E (<160)
Heizung: Ofenheizung mit Gas
Baujahr laut Energieausweis: 1932
1 x Garage