Doppelhaushälfte
85599 Parsdorf
5 Zimmer
ca. 140 m2 Wohnfläche
1966 Baujahr
2,97 % Provision inkl. ges. MwSt.
948.000 Euro
A+
A
B
C
D
E
F
G
H
159 kWh/(m²*a)
Ausstattung
Gäste-WC
Einbauküche
Keller
Objektnummer:
818.018
Grundstückfläche:
ca. 456 m2
Zimmeranzahl:
5
Schlafzimmeranzahl:
3
Anzahl Bäder:
1
Garage/Stellplatz:
1 Garage
Bezugsfrei ab:
nach Vereinbarung
Die Doppelhaushälfte überzeugt mit einer soliden und gepflegten Ausstattung, die sowohl Komfort als auch praktische Details bietet:
Erdgeschoss:
- Windfang gefliest mit neuer Hauseingangstür
- Gäste-WC
- Küche
- Wohnzimmer mit Zugang zur Terrasse und in den Garten,
- Zusätzlicher Wohn-/Essbereich in Erdgeschoss mit offener
Gestaltung.
Obergeschoss:
- Bad mit Badewanne, WC, Waschbecken und moderne Armaturen
- Schlafzimmer mit Zugang zum Balkon, Ahorn-Parkett
- Kinderzimmer mit Balkonzugang, Ahorn-Parkett
- Kinderzimmer 2, Parkett
- Flur
Dachgeschoss:
- Ausgebauter Raum mit Handwaschbecken, ideal als Büro oder
Jugendzimmer
- Ausgestattet mit Ahorn-Stab Parkett
- Zusätzlicher Abstellraum sowie Flur
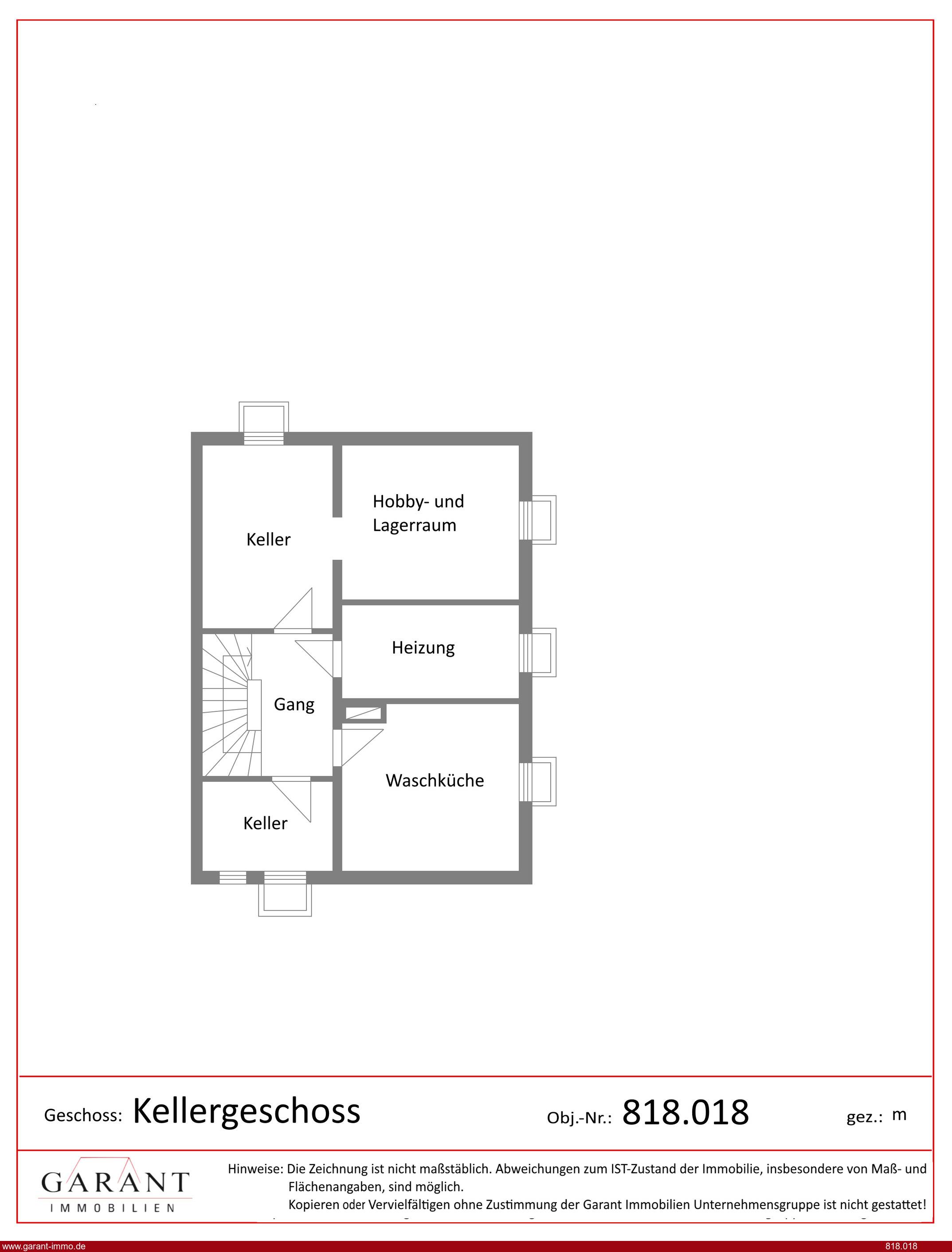
Kellergeschoss:
- Waschraum mit Anschlüssen für Waschmaschine/Trockner
- Vorratsraum, Heizungsraum, Bastel und Hobbyraum
- Viel Stauraum und zusätzliche Nutzungsmöglichkeiten
Technik:
- Moderne Gas-Zentralheizung
- Solaranlage zur Warmwasseraufbereitung
- Fenster größtenteils modernisiert
Außenbereich:
- Sonnige Süd-West-Ausrichtung
- Gepflegter Garten mit viel Platz und Freizeit und Erholung
- Großzügiger Balkon
- Garage + Carport
Erdgeschoss:
- Windfang gefliest mit neuer Hauseingangstür
- Gäste-WC
- Küche
- Wohnzimmer mit Zugang zur Terrasse und in den Garten,
- Zusätzlicher Wohn-/Essbereich in Erdgeschoss mit offener
Gestaltung.
Obergeschoss:
- Bad mit Badewanne, WC, Waschbecken und moderne Armaturen
- Schlafzimmer mit Zugang zum Balkon, Ahorn-Parkett
- Kinderzimmer mit Balkonzugang, Ahorn-Parkett
- Kinderzimmer 2, Parkett
- Flur
Dachgeschoss:
- Ausgebauter Raum mit Handwaschbecken, ideal als Büro oder
Jugendzimmer
- Ausgestattet mit Ahorn-Stab Parkett
- Zusätzlicher Abstellraum sowie Flur
Kellergeschoss:
- Waschraum mit Anschlüssen für Waschmaschine/Trockner
- Vorratsraum, Heizungsraum, Bastel und Hobbyraum
- Viel Stauraum und zusätzliche Nutzungsmöglichkeiten
Technik:
- Moderne Gas-Zentralheizung
- Solaranlage zur Warmwasseraufbereitung
- Fenster größtenteils modernisiert
Außenbereich:
- Sonnige Süd-West-Ausrichtung
- Gepflegter Garten mit viel Platz und Freizeit und Erholung
- Großzügiger Balkon
- Garage + Carport
Objektbeschreibung
Diese im Jahr 1966 erbaute Doppelhaushälfte vereint großzügige Raumaufteilung, eine gepflegte Ausstattung und eine ruhige Wohnlage am Ortsrand von Parsdorf. Auf einem ca. 456 qm großen, nach Süd-West ausgerichteten Grundstück bietet das Haus viel Platz für die ganze Familie. Der sonnige Garten lädt zu entspannten Stunden in Freien ein und macht das Haus zu einem idealen Zuhause für Naturliebhaber.
Im Erdgeschoss empfängt Sie ein großzügiger Wohnbereich mit Zugang zur Terrasse und in den Garten. Ein helles, ca. 32 qm großes Wohnzimmer, ausgestattet mit hochwertigem Laminatboden, bildet das Herzstück des Hauses. Angrenzend befindet sich die Küche, die offen in den Essbereich integriert werden kann. Zudem stehen ein Gäste-WC sowie eine praktische Garderobe zur Verfügung.
Das Obergeschoss überzeugt mit drei hellen Schlafzimmern. Besonders hervorzuheben ist das große Elternschlafzimmer mit Zugang zum Balkon, von dem aus man den Blick über den Garten genießen kann. Ein Tageslichtbad mit Badewanne, Dusche und modernen Armaturen rundet diese Etage ab.
Im Dachgeschoss befindet sich ein ausgebauter Raum mit Waschbecken, der sich hervorragend als Büro, Gästezimmer oder Jugendzimmer eignet.
Der Keller bietet zusätzliche Nutzflächen: Waschraum, Vorratsraum, Heizungsraum, Bastel- und Hobbykeller, hier findet alles seinen Platz.
Eine Garage mit großem Abstellraum sowie ein Carport gehören ebenfalls zum Haus und sorgen für ausreichend Stellmöglichkeiten.
Das Objekt wurde regelmäßig modernisiert, zuletzt im Jahr 2009, und ist insgesamt in einem gepflegten Zustand.
Internet: Glasfaser (FTTH - Fiber to the Home), Datenrate bis zu 1000 Mbit/s möglich.
Sehr gerne zeigen wir Ihnen die wunderbare ruhige und grüne Lage unseres Hauses vor Ort. Wir freuen uns auf Ihre Nachricht.
Im Erdgeschoss empfängt Sie ein großzügiger Wohnbereich mit Zugang zur Terrasse und in den Garten. Ein helles, ca. 32 qm großes Wohnzimmer, ausgestattet mit hochwertigem Laminatboden, bildet das Herzstück des Hauses. Angrenzend befindet sich die Küche, die offen in den Essbereich integriert werden kann. Zudem stehen ein Gäste-WC sowie eine praktische Garderobe zur Verfügung.
Das Obergeschoss überzeugt mit drei hellen Schlafzimmern. Besonders hervorzuheben ist das große Elternschlafzimmer mit Zugang zum Balkon, von dem aus man den Blick über den Garten genießen kann. Ein Tageslichtbad mit Badewanne, Dusche und modernen Armaturen rundet diese Etage ab.
Im Dachgeschoss befindet sich ein ausgebauter Raum mit Waschbecken, der sich hervorragend als Büro, Gästezimmer oder Jugendzimmer eignet.
Der Keller bietet zusätzliche Nutzflächen: Waschraum, Vorratsraum, Heizungsraum, Bastel- und Hobbykeller, hier findet alles seinen Platz.
Eine Garage mit großem Abstellraum sowie ein Carport gehören ebenfalls zum Haus und sorgen für ausreichend Stellmöglichkeiten.
Das Objekt wurde regelmäßig modernisiert, zuletzt im Jahr 2009, und ist insgesamt in einem gepflegten Zustand.
Internet: Glasfaser (FTTH - Fiber to the Home), Datenrate bis zu 1000 Mbit/s möglich.
Sehr gerne zeigen wir Ihnen die wunderbare ruhige und grüne Lage unseres Hauses vor Ort. Wir freuen uns auf Ihre Nachricht.
Lage
Die Immobilie liegt am Ortsrand von Parsdorf in einem reinen Wohngebiet. Die ruhige Lage zeichnet sich durch viel Grün und ein familienfreundliches Umfeld aus. Kindergarten und Grundschule befindet sich direkt im Ort, Einkaufsmöglichkeiten sowie eine gute Verkehrsanbindung sind schnell erreichbar.
Kosten
Kaufpreis:
948.000 Euro
Preis/m²:
6.771,43 Euro
Provision für Käufer:
2,97 % (Prozent des Kaufpreises inkl. Mwst ¹)
Energie
Energieausweis:
Energiebedarfsausweis
Heizungsart:
Solar-Heizung
Heizungsbefeuerung:
Gas
Energieverbrauch:
159 kWh/(m²*a)
Energieeffizienz:
E
Sonstiges
Sämtliche Angaben beruhen auf Angaben des Verkäufers und wurden von GARANT nicht geprüft. Hierfür haftet GARANT nicht.
¹ inkl. 19% Mwst. Deutschland (20% in Österreich)
¹ inkl. 19% Mwst. Deutschland (20% in Österreich)
Energiebedarfsausweis
Energiekennwert: 159,60 kWh/(qm*a)
Energieeffizienz: Klasse E (<160)
Heizung: Solar-Heizung mit Gas
Baujahr laut Energieausweis: 1966
1 x Garage, 1 x Carport