MFH mit Gewerbebereich
76137 Karlsruhe
14 Zimmer
ca. 379 m2 Wohnfläche
1955 Baujahr
4,76 % Provision inkl. ges. MwSt.
2.000.000 Euro
A+
A
B
C
D
E
F
G
H
194 kWh/(m²*a)
Ausstattung
Balkon
Objektnummer:
534.201
Grundstückfläche:
ca. 721 m2
Zimmeranzahl:
14
Schlafzimmeranzahl:
11
Anzahl Bäder:
11
Garage/Stellplatz:
1 Tiefgarage
Bezugsfrei ab:
vermietet
Sanierungsmassnahmen
Der freie Giebel des Hauses ist 2011 mit einem Vollwärmeschutz versehen worden. Alle Ablesemodule (Heizkostenverteiler und Wasseruhren) wurden 2015 ausgetauscht und mit Funkmodulen versehen, sodass die Wohnungen zur Ablesung nicht betreten werden müssen.
2017 wurde das Dachfenster erneuert, die Dachgauben und die gesamte Dachfläche überprüft und, soweit notwendig, saniert.
2018 wurden alle Balkone saniert; neue Beläge, Abdichtungen, Abläufe, Verkleidungen etc.
2020 wurden alle Fenster und Balkontüren erneuert (Kunststoffrahmen, Doppelverglasung)
2023 wurde der Warmwasserspeicher inkl. Armaturen erneuert.
Zur Heizperiode 2023/24 wird das Haus an das Fernwärmenetz von Karlsruhe angeschlossen.
Der freie Giebel des Hauses ist 2011 mit einem Vollwärmeschutz versehen worden. Alle Ablesemodule (Heizkostenverteiler und Wasseruhren) wurden 2015 ausgetauscht und mit Funkmodulen versehen, sodass die Wohnungen zur Ablesung nicht betreten werden müssen.
2017 wurde das Dachfenster erneuert, die Dachgauben und die gesamte Dachfläche überprüft und, soweit notwendig, saniert.
2018 wurden alle Balkone saniert; neue Beläge, Abdichtungen, Abläufe, Verkleidungen etc.
2020 wurden alle Fenster und Balkontüren erneuert (Kunststoffrahmen, Doppelverglasung)
2023 wurde der Warmwasserspeicher inkl. Armaturen erneuert.
Zur Heizperiode 2023/24 wird das Haus an das Fernwärmenetz von Karlsruhe angeschlossen.
Objektbeschreibung
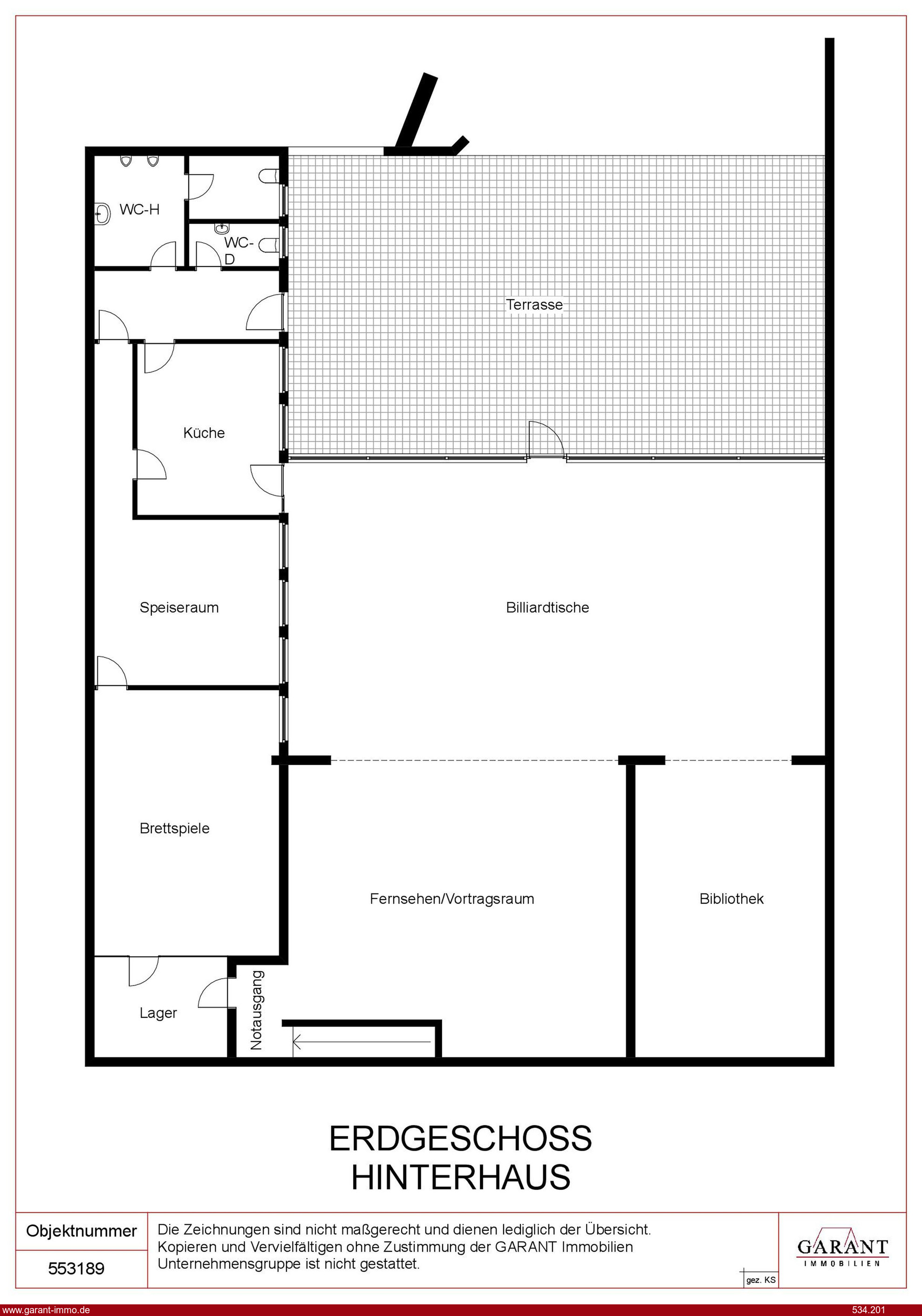
Das Objekt ist dauerhaft voll vermietet. Auf vier Etagen sind insgesamt elf Apartments mit 1-2 Zimmern zwischen ca. 25 qm und 44 qm untergebracht. Alle Apartments verfügen über eine eingebaute Pantry-Küche (Kühlschrank/Spüle/Kochplatten/Heisswasserboiler). Die sonnigen Balkone der hofseitigen Apartments steigern deren Wohnwert erheblich. Das Haus ist nahezu komplett an Studenten vermietet. Aufgrund der Wohnungsnot bei Studenten werden Apartments bei Auszug stets unter der Hand weitergereicht. Leerstand gibt es gar nicht. Dies gilt ebenso für Mietausfälle. Über einen Durchgang zwischen Hauseingang und Durchfahrt zur Tiefgarage gelangt man in den Innenhof mit eingeschossigen Nebengebäuden, die als Gewerbefläche vermietet sind. Diese Gewerbefläche ist derzeit äusserst günstig an einen Verein vermietet (1.500,00 EUR/Monat Nettomiete). Hier ist erhebliches Steigerungspotenzial möglich. Diese eingeschossigen Nebengebäude wären zu mehrgeschossigen Gebäuden erweiterbar.
Attraktion sind aufgrund der Parkplatznot in der Südstadt die 20 Stellplätze der Tiefgarage. Hier gibt es eine Warteliste für die Vermietung. Die Stellplatzmieten von derzeit 48,00 EUR (Garage 65,00 EUR) liegen im moderaten Bereich.
Attraktion sind aufgrund der Parkplatznot in der Südstadt die 20 Stellplätze der Tiefgarage. Hier gibt es eine Warteliste für die Vermietung. Die Stellplatzmieten von derzeit 48,00 EUR (Garage 65,00 EUR) liegen im moderaten Bereich.
Lage
Karlsruhe, die Stadt des Rechts, ist gleichzeitig ein modernes Zentrum für Forschung, Lehre und Kultur. Angehörige verschiedener Nationen und sozialer Schichten, vom Studenten über Angestellte/Akademiker bis zum Unternehmer fühlen sich hier sehr wohl und bilden auch den Kern der Bevölkerung der Südstadt.
Das Objekt liegt verkehrsgünstig in einer Seitenstraße der Hauptverkehrsverbindungen der Südstadt, unweit von Hauptbahnhof und Straßenbahnanschluss. Auch die Geschäfte für den täglichen Bedarf sowie beliebte Treffpunkte wie Stadtgarten oder Theater sind in unmittelbarer Nähe. Die Universität ist per Fahrrad in ca. 5 Minuten erreichbar.
Das Objekt liegt verkehrsgünstig in einer Seitenstraße der Hauptverkehrsverbindungen der Südstadt, unweit von Hauptbahnhof und Straßenbahnanschluss. Auch die Geschäfte für den täglichen Bedarf sowie beliebte Treffpunkte wie Stadtgarten oder Theater sind in unmittelbarer Nähe. Die Universität ist per Fahrrad in ca. 5 Minuten erreichbar.
Kosten
Kaufpreis:
2.000.000 Euro
Preis/m²:
5.277,04 Euro
Provision für Käufer:
4,76 % (Prozent des Kaufpreises inkl. Mwst ¹)
Energie
Energieausweis:
Energieverbrauchsausweis
Heizungsart:
Zentralheizung
Heizungsbefeuerung:
Öl
Energieverbrauch:
194 kWh/(m²*a)
Energieeffizienz:
F
Sonstiges
Sämtliche Angaben beruhen auf Angaben des Verkäufers und wurden von GARANT nicht geprüft. Hierfür haftet GARANT nicht.
¹ inkl. 19% Mwst. Deutschland (20% in Österreich)
¹ inkl. 19% Mwst. Deutschland (20% in Österreich)
Energieverbrauchsausweis
Energiekennwert: 194,00 kWh/(qm*a)
Energieeffizienz: Klasse F (<200)
Heizung: Zentralheizung mit Öl
Baujahr laut Energieausweis: 1960
1 x Tiefgarage
Zusammenfassung
Baujahr 1955
Grundstücksfläche ca. 721 qm
Nutzflächen/Wohnfläche ca. 379 qm
Gewerbefläche ca. 360 qm
11 Wohnungen mit je 25-44 qm Wohnfläche
Jahresnettomiete EUR 43.080,00
Gewerbeeinheit mit ca. 360 qm Nutzfläche
Jahresnettokmiete EUR 18.000,00
20 Tiefgaragenstellplätze
Jahresnettomiete EUR 11.800,00
Gesamt EUR 72.880,00
6 Balkone zur Südseite
Ölzentralheizung Baujahr ca. 2001,
Marke Viessmann, Tank 10.000 l.