Dreifamilienhaus
76228 Karlsruhe
10 Zimmer
ca. 320 m2 Wohnfläche
1974 Baujahr
4,76 % Provision inkl. ges. MwSt.
850.000 Euro
A+
A
B
C
D
E
F
G
H
124 kWh/(m²*a)
Ausstattung
Gäste-WC
Keller
Balkon
Objektnummer:
545.663
Grundstückfläche:
ca. 650 m2
Zimmeranzahl:
10
Garage/Stellplatz:
2 Garage
Bezugsfrei ab:
teilvermietet
Objektbeschreibung
Das Haus wurde 1974 auf einem ca. 650 Quadratmeter großen Grundstück errichtet. Dieses grenzt an Wiesengrundstücke. Hier sagen sich Fuchs und Hase gute Nacht!
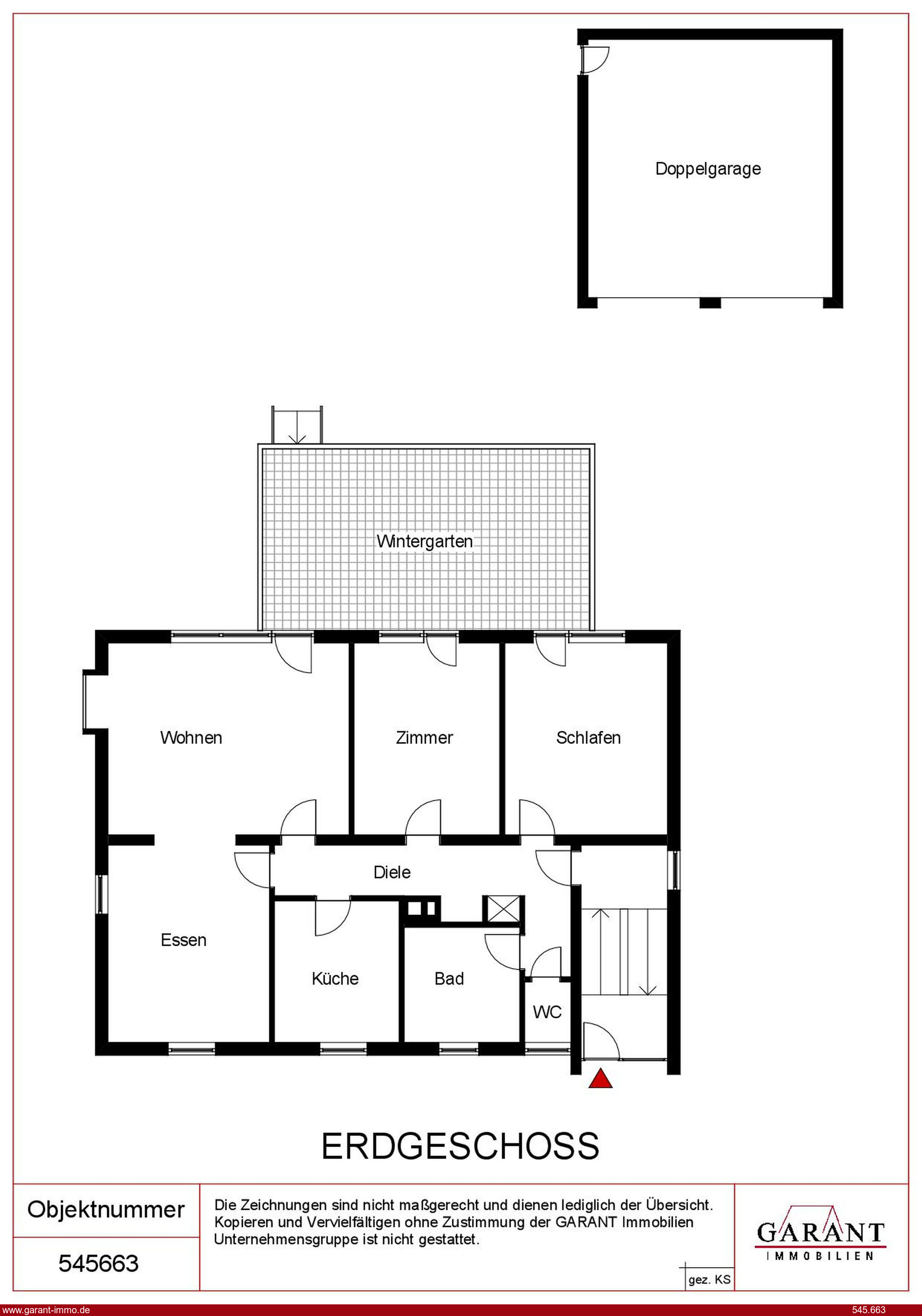
Die ca. 140 Quadratmeter große Wohnung im Erdgeschoss steht leer, könnte also nach eventuellen Renovierungen bald bezogen werden. Das Herzstück hier ist der riesige, ganzjährig nutzbare Wintergarten mit toller Aussicht ins Grüne. Die offene Küche grenzt an, hier macht das Kochen Spaß!
Die beiden Wohnungen im Ober- und Dachgeschoss sind bereits seit längerem vermietet.
Seit der Jahrtausendwende wurden einige Sanierungsmaßnahmen vorgenommen. So wurden die Fenster erneuert und das Dach neu eingedeckt und, wie das gesamte Gebäude, gedämmt.
Wenn Sie ein Eigenheim suchen mit zusätzlichen Mieteinnahmen, perspektivisch vielleicht auch als Generationenhaus, sollten wir unbedingt einen Besichtigungstermin vereinbaren!
Die ca. 140 Quadratmeter große Wohnung im Erdgeschoss steht leer, könnte also nach eventuellen Renovierungen bald bezogen werden. Das Herzstück hier ist der riesige, ganzjährig nutzbare Wintergarten mit toller Aussicht ins Grüne. Die offene Küche grenzt an, hier macht das Kochen Spaß!
Die beiden Wohnungen im Ober- und Dachgeschoss sind bereits seit längerem vermietet.
Seit der Jahrtausendwende wurden einige Sanierungsmaßnahmen vorgenommen. So wurden die Fenster erneuert und das Dach neu eingedeckt und, wie das gesamte Gebäude, gedämmt.
Wenn Sie ein Eigenheim suchen mit zusätzlichen Mieteinnahmen, perspektivisch vielleicht auch als Generationenhaus, sollten wir unbedingt einen Besichtigungstermin vereinbaren!
Lage
ruhige Halbhöhenlage im reinen Wohngebiet
Kosten
Kaufpreis:
850.000 Euro
Preis/m²:
2.656,25 Euro
Provision für Käufer:
4,76 % (Prozent des Kaufpreises inkl. Mwst ¹)
Energie
Energieausweis:
Energiebedarfsausweis
Heizungsart:
Zentralheizung
Heizungsbefeuerung:
Öl
Energieverbrauch:
124 kWh/(m²*a)
Energieeffizienz:
D
Sonstiges
Sämtliche Angaben beruhen auf Angaben des Verkäufers und wurden von GARANT nicht geprüft. Hierfür haftet GARANT nicht.
¹ inkl. 19% Mwst. Deutschland (20% in Österreich)
¹ inkl. 19% Mwst. Deutschland (20% in Österreich)
Energiebedarfsausweis
Energiekennwert: 124,14 kWh/(qm*a)
Energieeffizienz: Klasse D (<130)
Heizung: Zentralheizung mit Öl
Baujahr laut Energieausweis: 1974
2 x Garage