Einfamilienhaus
74078 Heilbronn
5 Zimmer
ca. 160 m2 Wohnfläche
1905 Baujahr
2,97 % Provision inkl. ges. MwSt.
618.000 Euro
A+
A
B
C
D
E
F
G
H
154 kWh/(m²*a)
Ausstattung
Gäste-WC
Einbauküche
Keller
Objektnummer:
645.533
Grundstückfläche:
ca. 384 m2
Zimmeranzahl:
5
Schlafzimmeranzahl:
3
Anzahl Bäder:
1
Garage/Stellplatz:
2 Garage
Bezugsfrei ab:
Sofort frei
Objektbeschreibung
Wenn Sie auf der Suche nach einem einzigartigen Familiendomizil in Heilbronn sind, dann könnte es sein, dass Ihre Suche nun ein Ende hat.
Aus Alt mach NEU - das war die Idee der Familie, die vor ca. 12 Jahren die alte Kinderschule im Stadtteil Frankenbach erwarb. Mit Geschick und Ausdauer entstand im Laufe der kommenden beiden Jahre ein Stück Individualität: Ein zu Hause für eine Familie, die den Individualismus liebt. Außen Anno 1905 und innen 2015.
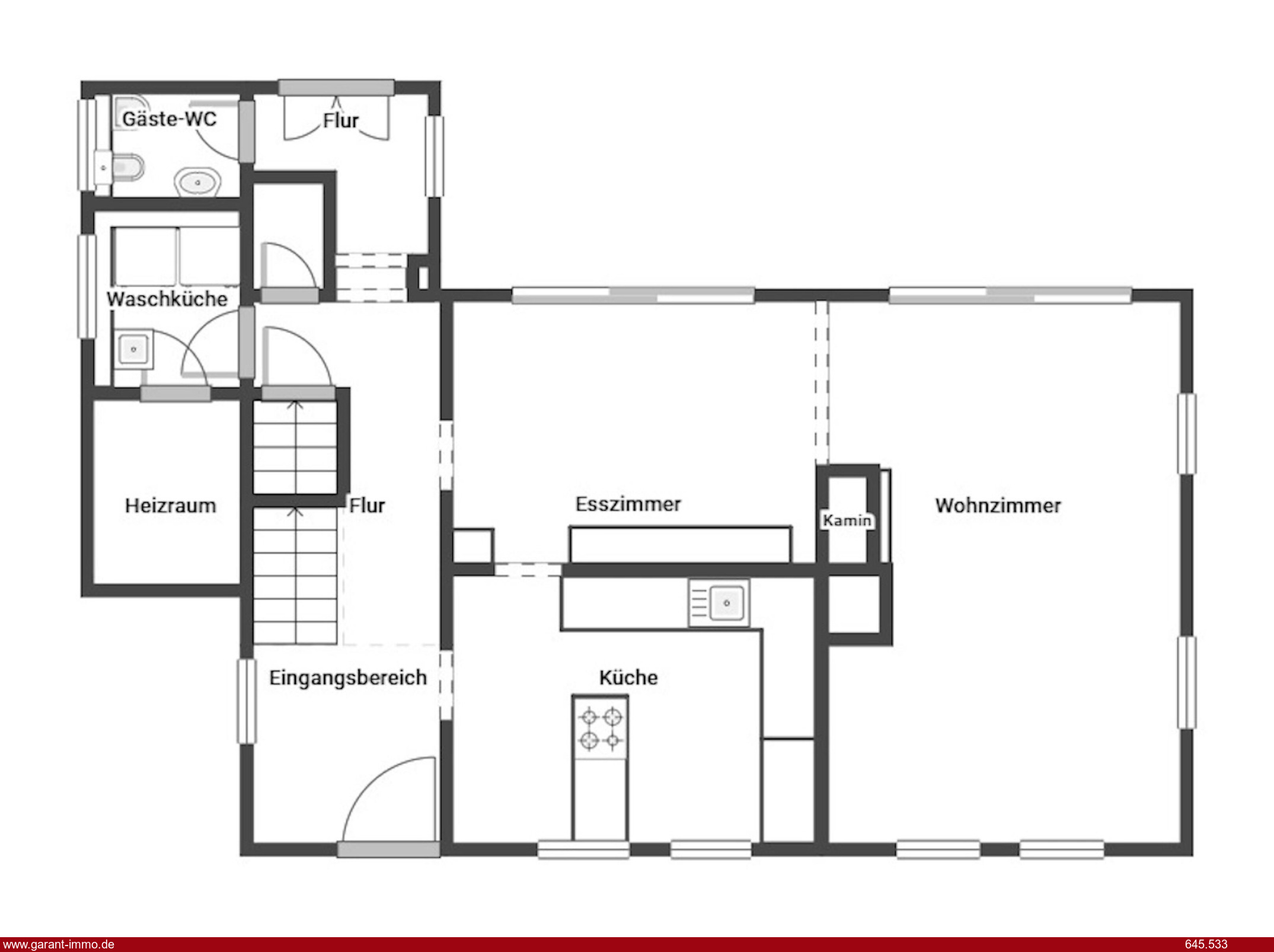
Alles wurde saniert, alles wurde erneuert. Entstanden ist ein geradliniges, ehrliches Einfamilienhaus. Klar strukturiert, um nicht zu sagen beinahe klassisch, finden Sie im Erdgeschoss mit dem Wohn- und Esszimmer den Lebensmittelpunkt, eine große Küche, Gäste-WC, Hauswirtschafts- und Technikraum. Im Dachgeschoss sind die privaten Räume und das Hauptbad. Der Spitzboden ist zur Nutzung ausgebaut. Auf der einen Seite wurde gearbeitet, auf der anderen spielten die Kids mit Ihrer Eisenbahn. Es gibt noch einen kleinen, sogenannten kalten Keller und natürlich 2 Garagen.
Insgesamt verteilt sich das alles auf ca. 160 qm Wohnfläche. Dazu kommt eine wirklich schöne, recht große Terrasse und, ganz wichtig und wie in den Bildern zu erkennen, das kleine Haus für die Kids. Auf ein paar weitere Highlights möchten wir verweisen:
- Den Holzofen mit Wassertasche im Wohnzimmer
- Die Klimaanlagen für die privaten Räume im Dachgeschoss und den Spitz
- Die hochwertige Einbauküche
- Die Solaranlage für Warmwasser und Heizung
- Die Ankleide am Schlafzimmer
Verkaufsgrund ist wie so oft der Umzug der gesamten Familie. Das geschah schweren Herzens und wird ein stückweit von der Hoffnung, dass das Anwesen in ähnliche Hände kommt, erleichtert.
Alle weiteren Informationen erhalten Sie von unserem Mitarbeiter.
Aus Alt mach NEU - das war die Idee der Familie, die vor ca. 12 Jahren die alte Kinderschule im Stadtteil Frankenbach erwarb. Mit Geschick und Ausdauer entstand im Laufe der kommenden beiden Jahre ein Stück Individualität: Ein zu Hause für eine Familie, die den Individualismus liebt. Außen Anno 1905 und innen 2015.
Alles wurde saniert, alles wurde erneuert. Entstanden ist ein geradliniges, ehrliches Einfamilienhaus. Klar strukturiert, um nicht zu sagen beinahe klassisch, finden Sie im Erdgeschoss mit dem Wohn- und Esszimmer den Lebensmittelpunkt, eine große Küche, Gäste-WC, Hauswirtschafts- und Technikraum. Im Dachgeschoss sind die privaten Räume und das Hauptbad. Der Spitzboden ist zur Nutzung ausgebaut. Auf der einen Seite wurde gearbeitet, auf der anderen spielten die Kids mit Ihrer Eisenbahn. Es gibt noch einen kleinen, sogenannten kalten Keller und natürlich 2 Garagen.
Insgesamt verteilt sich das alles auf ca. 160 qm Wohnfläche. Dazu kommt eine wirklich schöne, recht große Terrasse und, ganz wichtig und wie in den Bildern zu erkennen, das kleine Haus für die Kids. Auf ein paar weitere Highlights möchten wir verweisen:
- Den Holzofen mit Wassertasche im Wohnzimmer
- Die Klimaanlagen für die privaten Räume im Dachgeschoss und den Spitz
- Die hochwertige Einbauküche
- Die Solaranlage für Warmwasser und Heizung
- Die Ankleide am Schlafzimmer
Verkaufsgrund ist wie so oft der Umzug der gesamten Familie. Das geschah schweren Herzens und wird ein stückweit von der Hoffnung, dass das Anwesen in ähnliche Hände kommt, erleichtert.
Alle weiteren Informationen erhalten Sie von unserem Mitarbeiter.
Lage
Frankenbach, lebendiger Stadtteil von Heilbronn. Hier finden Sie alles, was Sie zum Leben brauchen. Die Lage im Stadtteil ist ruhig.
Kosten
Kaufpreis:
618.000 Euro
Preis/m²:
3.862,50 Euro
Provision für Käufer:
2,97 % (Prozent des Kaufpreises inkl. Mwst ¹)
Energie
Energieausweis:
Energiebedarfsausweis
Heizungsart:
Zentralheizung
Heizungsbefeuerung:
Gas
Energieverbrauch:
154 kWh/(m²*a)
Energieeffizienz:
E
Sonstiges
Sämtliche Angaben beruhen auf Angaben des Verkäufers und wurden von GARANT nicht geprüft. Hierfür haftet GARANT nicht.
¹ inkl. 19% Mwst. Deutschland (20% in Österreich)
¹ inkl. 19% Mwst. Deutschland (20% in Österreich)
Energiebedarfsausweis
Energiekennwert: 154,70 kWh/(qm*a)
Energieeffizienz: Klasse E (<160)
Heizung: Zentralheizung mit Gas
Baujahr laut Energieausweis: 1905
2 x Garage
- Kaminofen mit Wassertasche
- Doppelgarage