Wohn-und Geschäftshaus
85241 Hebertshausen
16 Zimmer
ca. 236 m2 Wohnfläche
1953 Baujahr
2,97 % Provision inkl. ges. MwSt.
1.349.000 Euro
A+
A
B
C
D
E
F
G
H
64 kWh/(m²*a)
Ausstattung
Einbauküche
Balkon
Objektnummer:
855.031
Grundstückfläche:
ca. 1218 m2
Zimmeranzahl:
16
Garage/Stellplatz:
4 Garage
Bezugsfrei ab:
nach Vereinbarung
* drei Gewerbeeinheiten
* zwei Wohneinheiten
* Bauplatz im hinteren Teil des Grundstücks
* acht Stellplätze
* vier Garagen
* vier Einbauküchen
* Kachelofen
* zwei Wohneinheiten
* Bauplatz im hinteren Teil des Grundstücks
* acht Stellplätze
* vier Garagen
* vier Einbauküchen
* Kachelofen
Objektbeschreibung
Dieses großzügige Wohn- und Geschäftshaus im charmanten Hebertshausen vereint attraktiven Bestandswert mit hohem Entwicklungspotenzial. Auf einem insgesamt ca. 1.218 m² großen Grundstück bietet es sowohl solide Mieterträge als auch spannende Möglichkeiten zur Erweiterung.
Das im Jahr 1953 errichtete Ursprungsgebäude wurde über die Jahre mehrfach erweitert und gepflegt. Heute präsentiert es sich als vielseitig genutzte Immobilie mit insgesamt rund 232 m² Gewerbefläche im Erdgeschoss und ca. 236 m² Wohnfläche im ersten Obergeschoss und Dachgeschoss.
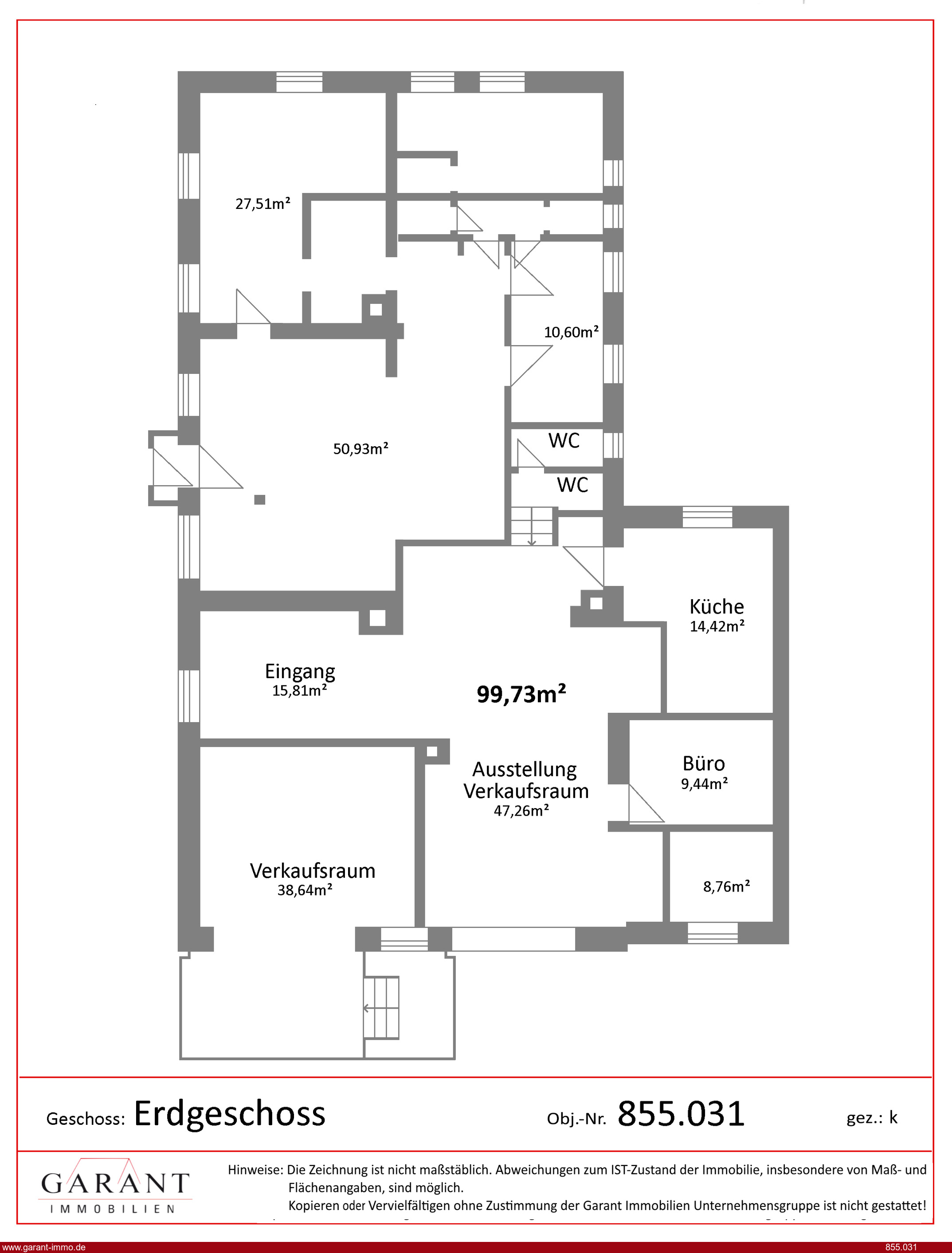
Im Erdgeschoss befinden sich drei vollständig vermietete Gewerbeeinheiten: eine Arztpraxis mit ca. 94 m², eine Fahrschule mit ca. 99 m² sowie eine 24/7-Automaten-Metzgerei mit ca. 39 m². Die Mieterstruktur ist solide, die Lage für Gewerbebetriebe attraktiv. Dazu sind auf dem Grundstück vier Garagenplätze sowie acht Außenstellplätze vorhanden.
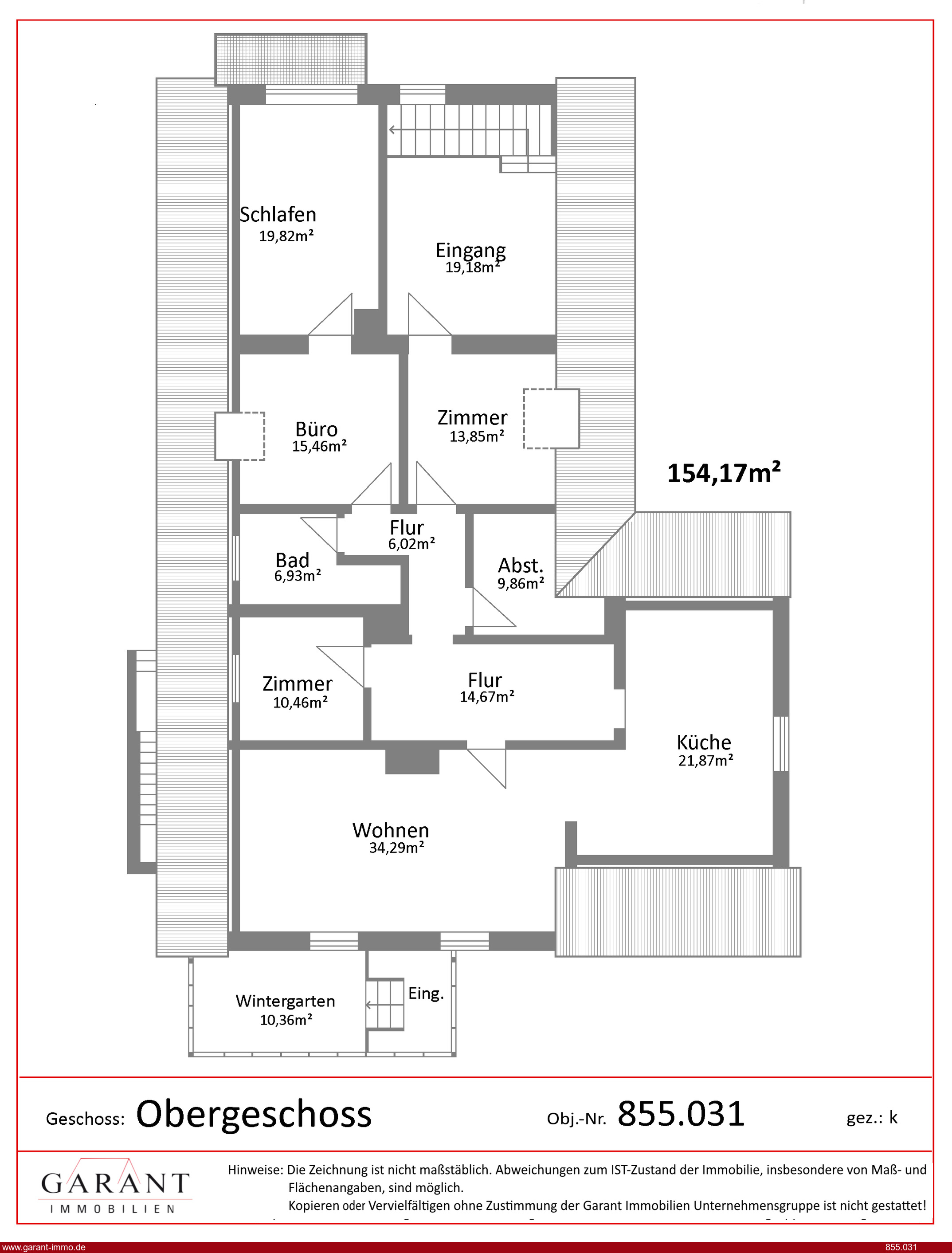
Das erste Obergeschoss beherbergt eine großzügige Wohnung mit rund 154,17 m², die sich durch helle Räume und eine durchdachte Grundrissgestaltung auszeichnet. Im Dachgeschoss befindet sich eine weitere, charmante Wohnung mit ca. 67,32 m², die viel Licht und eine gemütliche Atmosphäre bietet.
Hinter dem Gebäude erstreckt sich ein traumhafter Gartenbereich, der nicht nur zum Entspannen einlädt, sondern auch als Bauplatz genutzt werden kann. Dieses zusätzliche Potenzial eröffnet Investoren die Möglichkeit, weitere Wohn- oder Gewerbeflächen zu schaffen und die Rendite deutlich zu steigern.Auf Wunsch kann das Grundstück auch geteilt werden, sodass der Bauplatz und das Bestandsgebäude separat erworben werden können.
Eine Besichtigung lohnt sich GARANTiert! Bei Fragen und zur Vereinbarung eines Besichtigungstermins steht Ihnen Peter Auburger unter 017662382574 zur Verfügung
Das im Jahr 1953 errichtete Ursprungsgebäude wurde über die Jahre mehrfach erweitert und gepflegt. Heute präsentiert es sich als vielseitig genutzte Immobilie mit insgesamt rund 232 m² Gewerbefläche im Erdgeschoss und ca. 236 m² Wohnfläche im ersten Obergeschoss und Dachgeschoss.
Im Erdgeschoss befinden sich drei vollständig vermietete Gewerbeeinheiten: eine Arztpraxis mit ca. 94 m², eine Fahrschule mit ca. 99 m² sowie eine 24/7-Automaten-Metzgerei mit ca. 39 m². Die Mieterstruktur ist solide, die Lage für Gewerbebetriebe attraktiv. Dazu sind auf dem Grundstück vier Garagenplätze sowie acht Außenstellplätze vorhanden.
Das erste Obergeschoss beherbergt eine großzügige Wohnung mit rund 154,17 m², die sich durch helle Räume und eine durchdachte Grundrissgestaltung auszeichnet. Im Dachgeschoss befindet sich eine weitere, charmante Wohnung mit ca. 67,32 m², die viel Licht und eine gemütliche Atmosphäre bietet.
Hinter dem Gebäude erstreckt sich ein traumhafter Gartenbereich, der nicht nur zum Entspannen einlädt, sondern auch als Bauplatz genutzt werden kann. Dieses zusätzliche Potenzial eröffnet Investoren die Möglichkeit, weitere Wohn- oder Gewerbeflächen zu schaffen und die Rendite deutlich zu steigern.Auf Wunsch kann das Grundstück auch geteilt werden, sodass der Bauplatz und das Bestandsgebäude separat erworben werden können.
Eine Besichtigung lohnt sich GARANTiert! Bei Fragen und zur Vereinbarung eines Besichtigungstermins steht Ihnen Peter Auburger unter 017662382574 zur Verfügung
Lage
Die Lage im gefragten Hebertshausen verbindet ruhiges Wohnen mit hervorragender Infrastruktur. Einkaufsmöglichkeiten, Ärzte, Schulen und der Bahnanschluss befinden sich in unmittelbarer Nähe. München ist in weniger als 30 Minuten erreichbar, Dachau sogar in wenigen Fahrminuten.
Kosten
Kaufpreis:
1.349.000 Euro
Preis/m²:
5.716,10 Euro
Provision für Käufer:
2,97 % (Prozent des Kaufpreises inkl. Mwst ¹)
Energie
Energieausweis:
Energieverbrauchsausweis
Heizungsart:
Zentralheizung
Heizungsbefeuerung:
Öl
Energieverbrauch:
64 kWh/(m²*a)
Energieeffizienz:
B
Sonstiges
Sämtliche Angaben beruhen auf Angaben des Verkäufers und wurden von GARANT nicht geprüft. Hierfür haftet GARANT nicht.
¹ inkl. 19% Mwst. Deutschland (20% in Österreich)
¹ inkl. 19% Mwst. Deutschland (20% in Österreich)
Energieverbrauchsausweis
Energiekennwert: 64,00 kWh/(qm*a)
Energieeffizienz: Klasse B (<75)
Heizung: Zentralheizung mit Öl
Baujahr laut Energieausweis: 1953
4 x Garage, 8 x Stellplatz außen