Einfamilienhaus
67454 Haßloch
8 Zimmer
ca. 105 m2 Wohnfläche
1930 Baujahr
3,57 % Provision inkl. ges. MwSt.
349.000 Euro
A+
A
B
C
D
E
F
G
H
341 kWh/(m²*a)
Ausstattung
Gäste-WC
Keller
Balkon
Objektnummer:
581.055
Grundstückfläche:
ca. 1158 m2
Zimmeranzahl:
8
Garage/Stellplatz:
1 Garage
Bezugsfrei ab:
sofort
Ca. 1.158 qm großes, gepflegtes Grundstück mit Garten und weitläufiger Rasenfläche (ideal für Tierhaltung).
Zwei separate Einfamilienhäuser auf einem Grundstück (ideal für Mehrgenerationenwohnen oder Vermietung).
Vorderes Haus (ca. 105 qm Wfl.): Baujahr 1930 (Anbau 1965), vier Zimmer, Küche, Bad und Gäste-WC.
Hinteres Haus (ca. 90 qm Wfl.): Ruhige Lage mit Gartenblick; Heizung und Elektrik für Sanierung bereits vorbereitet.
Zustand: Beide Gebäude sind renovierungs- bzw. modernisierungsbedürftig.
Keller: Vorderes Haus ist voll unterkellert (Platz für Hobby, Werkstatt oder Lager).
Heizung: Aktuell Elektroheizung im vorderen Haus.
Parken: Eine Garage sowie zusätzliche Außenstellplätze im Hof vorhanden.
Zwei separate Einfamilienhäuser auf einem Grundstück (ideal für Mehrgenerationenwohnen oder Vermietung).
Vorderes Haus (ca. 105 qm Wfl.): Baujahr 1930 (Anbau 1965), vier Zimmer, Küche, Bad und Gäste-WC.
Hinteres Haus (ca. 90 qm Wfl.): Ruhige Lage mit Gartenblick; Heizung und Elektrik für Sanierung bereits vorbereitet.
Zustand: Beide Gebäude sind renovierungs- bzw. modernisierungsbedürftig.
Keller: Vorderes Haus ist voll unterkellert (Platz für Hobby, Werkstatt oder Lager).
Heizung: Aktuell Elektroheizung im vorderen Haus.
Parken: Eine Garage sowie zusätzliche Außenstellplätze im Hof vorhanden.
Objektbeschreibung
Dieses seltene Immobilienangebot vereint Platz, Flexibilität und grüne Idylle auf einem
ca. 1.158 qm großen Grundstück! Das Objekt besticht durch einen liebevoll angelegten, gepflegten Garten mit angrenzender, weitläufiger Rasenfläche, die sich ideal für die Tierhaltung oder als privates Spielparadies eignet.
Auf dem Grundstück befinden sich zwei separate Einfamilienhäuser, die vielfältige Nutzungskonzepte ermöglichen: Ob Generationenwohnen, die Kombination aus Eigennutzung und Vermietung oder Wohnen und Arbeiten an einem Ort. Hier sind Ihren Vorstellungen keine Grenzen gesetzt. Beide Gebäude sind renovierungsbedürftig und warten darauf, durch eine Modernisierung in neuem Glanz zu erstrahlen.
Das vordere Einfamilienhaus wurde ursprünglich um 1930 erbaut und ca. 1965 durch einen Anbau erweitert. Mit einer Wohnfläche von ca. 105 qm bietet es eine solide Basis für eine Familie.
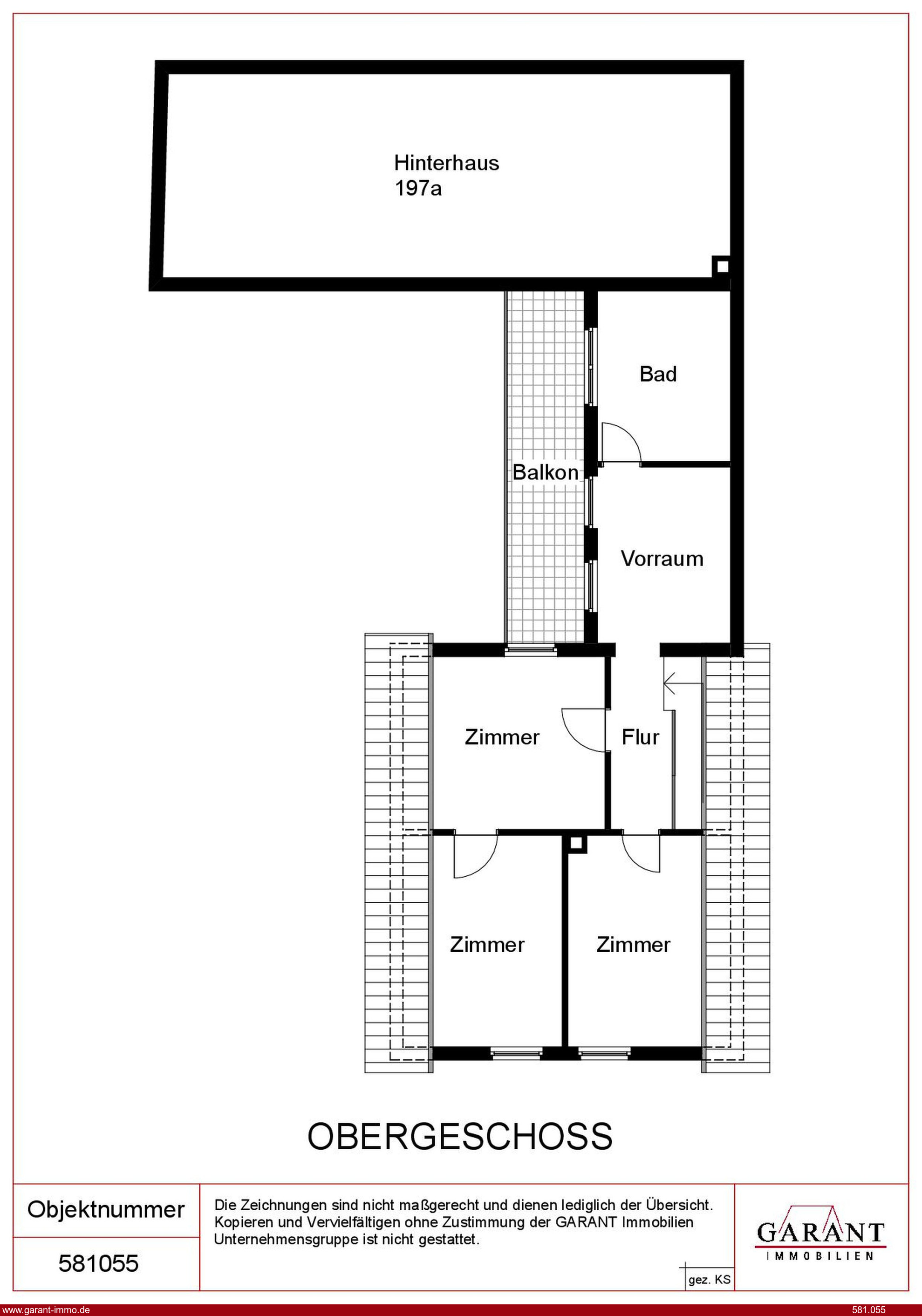
Im Erdgeschoss befindet sich das Wohnzimmer und eine separate Küche, im Obergeschoss finden Sie weitere drei Zimmer, ein Badezimmer sowie ein Gäste-WC.
Der Dachboden bietet noch Abstellfläche, außerdem ist das Haus voll unterkellert, was reichlich Platz für Hobby, Lager oder Werkstatt bietet.
Aktuell wird das Haus über eine Elektroheizung beheizt.
Das hintere Einfamilienhaus auf dem Grundstück, ca. 1965 erbaut mit ca. 90 qm Wohnfläche und vier Zimmern, besticht durch seine ruhige Lage und den herrlichen Blick in den weitläufigen Garten.
Hier wurden die Heizungsanlage sowie die Elektrik bereits fachgerecht ausgebaut, sodass Sie unmittelbar mit der energetischen Sanierung und Neugestaltung nach Ihren Wünschen beginnen können Die Nähe zur Natur und die Ruhe im hinteren Grundstücksteil machen dieses Haus zu einem besonderen Rückzugsort.
Eine Garage und Stellplätze im Hof runden das Angebot ab.
* Das Objekt hat Ihr Interesse geweckt? Dann vereinbaren Sie noch heute einen Besichtigungstermin. Ich freue mich auf Sie! *
ca. 1.158 qm großen Grundstück! Das Objekt besticht durch einen liebevoll angelegten, gepflegten Garten mit angrenzender, weitläufiger Rasenfläche, die sich ideal für die Tierhaltung oder als privates Spielparadies eignet.
Auf dem Grundstück befinden sich zwei separate Einfamilienhäuser, die vielfältige Nutzungskonzepte ermöglichen: Ob Generationenwohnen, die Kombination aus Eigennutzung und Vermietung oder Wohnen und Arbeiten an einem Ort. Hier sind Ihren Vorstellungen keine Grenzen gesetzt. Beide Gebäude sind renovierungsbedürftig und warten darauf, durch eine Modernisierung in neuem Glanz zu erstrahlen.
Das vordere Einfamilienhaus wurde ursprünglich um 1930 erbaut und ca. 1965 durch einen Anbau erweitert. Mit einer Wohnfläche von ca. 105 qm bietet es eine solide Basis für eine Familie.
Im Erdgeschoss befindet sich das Wohnzimmer und eine separate Küche, im Obergeschoss finden Sie weitere drei Zimmer, ein Badezimmer sowie ein Gäste-WC.
Der Dachboden bietet noch Abstellfläche, außerdem ist das Haus voll unterkellert, was reichlich Platz für Hobby, Lager oder Werkstatt bietet.
Aktuell wird das Haus über eine Elektroheizung beheizt.
Das hintere Einfamilienhaus auf dem Grundstück, ca. 1965 erbaut mit ca. 90 qm Wohnfläche und vier Zimmern, besticht durch seine ruhige Lage und den herrlichen Blick in den weitläufigen Garten.
Hier wurden die Heizungsanlage sowie die Elektrik bereits fachgerecht ausgebaut, sodass Sie unmittelbar mit der energetischen Sanierung und Neugestaltung nach Ihren Wünschen beginnen können Die Nähe zur Natur und die Ruhe im hinteren Grundstücksteil machen dieses Haus zu einem besonderen Rückzugsort.
Eine Garage und Stellplätze im Hof runden das Angebot ab.
* Das Objekt hat Ihr Interesse geweckt? Dann vereinbaren Sie noch heute einen Besichtigungstermin. Ich freue mich auf Sie! *
Lage
Haßloch ist über die A65 hervorragend an Neustadt an der Weinstraße (ca. 10 Min.), Landau, Ludwigshafen und Mannheim angebunden. Der Bahnhof bietet Anschluss an die S-Bahn Rhein-Neckar (Linien S1, S2) Richtung Kaiserslautern und Mannheim/Heidelberg.
Als Mittelzentrum bietet der Ort eine vollständige Infrastruktur mit zahlreichen Supermärkten, Fachgeschäften, Ärzten sowie allen Schulformen und Kindergärten.
Als Mittelzentrum bietet der Ort eine vollständige Infrastruktur mit zahlreichen Supermärkten, Fachgeschäften, Ärzten sowie allen Schulformen und Kindergärten.
Kosten
Kaufpreis:
349.000 Euro
Preis/m²:
3.323,81 Euro
Provision für Käufer:
3,57 % (Prozent des Kaufpreises inkl. Mwst ¹)
Energie
Energieausweis:
Energiebedarfsausweis
Heizungsart:
Elektro-Heizung
Heizungsbefeuerung:
Strom
Energieverbrauch:
341 kWh/(m²*a)
Energieeffizienz:
H
Sonstiges
Sämtliche Angaben beruhen auf Angaben des Verkäufers und wurden von GARANT nicht geprüft. Hierfür haftet GARANT nicht.
¹ inkl. 19% Mwst. Deutschland (20% in Österreich)
¹ inkl. 19% Mwst. Deutschland (20% in Österreich)
Energiebedarfsausweis
Energiekennwert: 341,90 kWh/(qm*a)
Energieeffizienz: Klasse H (>250)
Heizung: Elektro-Heizung mit Strom
Baujahr laut Energieausweis: 1930
1 x Garage, 1 x Stellplatz außen
Ideal für Handwerker und Gartenfreunde! Dieses Immobilienpaket bietet Ihnen die seltene Chance, ein großes Grundstück nach Ihren individuellen Vorstellungen zu gestalten. Nutzen Sie die solide Substanz der beiden Häuser und schaffen Sie sich ein rentables Investment oder ein traumhaftes Zuhause für die ganze Familie.
Ein Energieausweis ist nur für das vordere Haus erforderlich.