Reihenmittelhaus
94481 Grafenau
4 Zimmer
ca. 106 m2 Wohnfläche
1992 Baujahr
3,57 % Provision inkl. ges. MwSt.
265.000 Euro
A+
A
B
C
D
E
F
G
H
139 kWh/(m²*a)
Ausstattung
Gäste-WC
Keller
Balkon
Objektnummer:
622.022
Grundstückfläche:
ca. 165 m2
Zimmeranzahl:
4
Schlafzimmeranzahl:
3
Anzahl Bäder:
2
Garage/Stellplatz:
1 Garage
Bezugsfrei ab:
nach Vereinbarung
- Großer Wohn- Essbereich
- Terrasse
- Zwei Bäder
- Ankleide
- Keller
- Garage
- Küche (Übernahme möglich)
- Terrasse
- Zwei Bäder
- Ankleide
- Keller
- Garage
- Küche (Übernahme möglich)
Objektbeschreibung
Hier heißt es einziehen und wohlfühlen. In dieses Reihenmittelhaus können sie ohne großen Aufwand sofort einziehen. Top gepflegt und in bestem Zustand präsentiert sich dieses 1992 gebaute Haus. Es wurde 2022 geschmackvoll und modern renoviert. Die Wohnfläche von ca. 106 m² verteilen sich auf Erdgeschoss, Obergeschoss und Dachgeschoss.
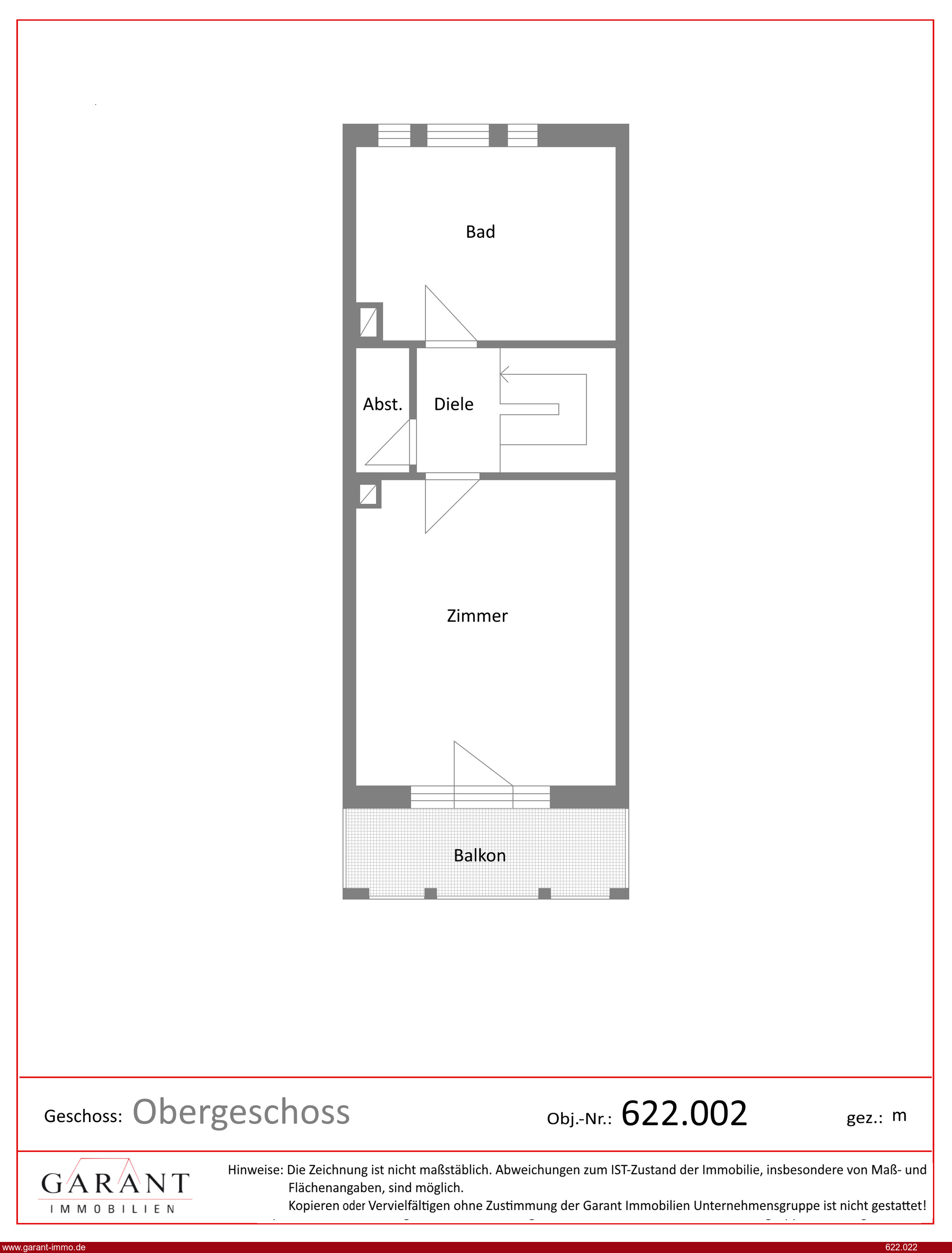
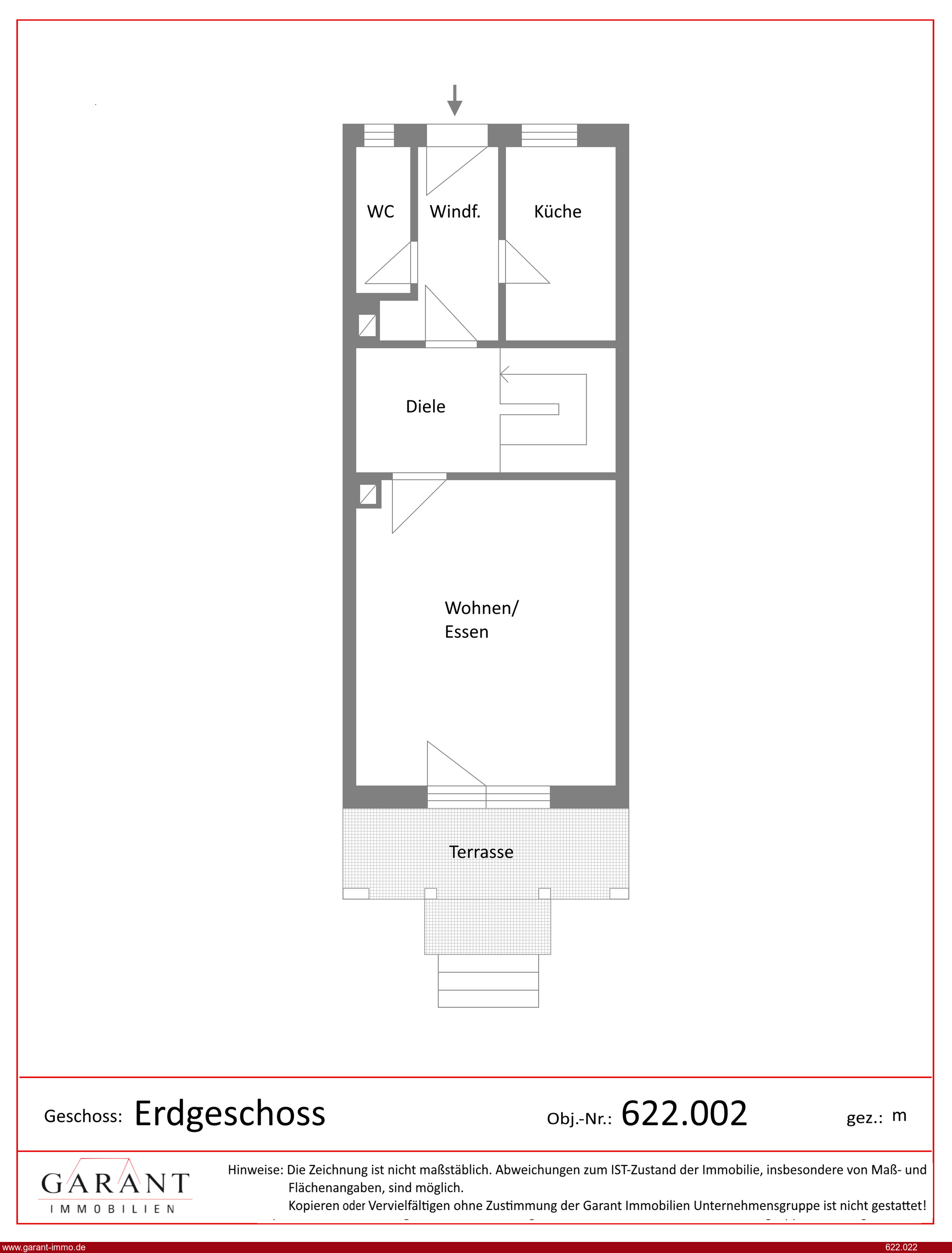
Küche, Wohn-/Essbereich und Gäste-WC befinden sich im Erdgeschoss. Vom Wohnzimmer aus haben sie Zugang zur Terrasse und dem kleinen Garten. Im Wohnbereich der ca. 19 m² misst, befindet sich die Treppe, die zu den oberen Stockwerken führt. Von da aus erreichen sie das Schlafzimmer, ein Ankleidezimmer sowie das Hauptbad des Hauses. Dieses ist mit zwei Waschtischen, Wanne, Dusche und WC ausgestattet. Auch hier wurde 2022 renoviert. Des Weiteren gibt es im Dachgeschoss zwei kleinere Räume, die aktuell als Kinderzimmer genutzt werden. Ein Bad mit Dusche, Waschtisch und WC ist in dieser Etage vorhanden.
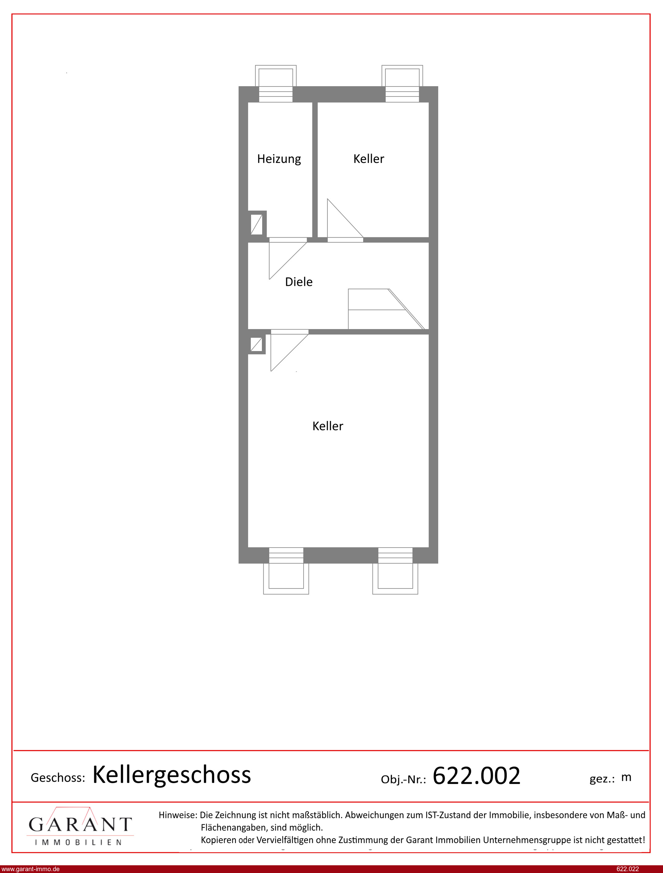
Das Haus ist komplett unterkellert. Die Treppe zum Keller ist im Eingangsbereich. Heizung, Waschraum und Partyraum erweitern das Platzangebot dieses Hauses. Eine Gaszentralheizung entspricht dem Baujahr.
Einziehen und wohlfühlen! Kein Renovierungsstau!
Küche, Wohn-/Essbereich und Gäste-WC befinden sich im Erdgeschoss. Vom Wohnzimmer aus haben sie Zugang zur Terrasse und dem kleinen Garten. Im Wohnbereich der ca. 19 m² misst, befindet sich die Treppe, die zu den oberen Stockwerken führt. Von da aus erreichen sie das Schlafzimmer, ein Ankleidezimmer sowie das Hauptbad des Hauses. Dieses ist mit zwei Waschtischen, Wanne, Dusche und WC ausgestattet. Auch hier wurde 2022 renoviert. Des Weiteren gibt es im Dachgeschoss zwei kleinere Räume, die aktuell als Kinderzimmer genutzt werden. Ein Bad mit Dusche, Waschtisch und WC ist in dieser Etage vorhanden.
Das Haus ist komplett unterkellert. Die Treppe zum Keller ist im Eingangsbereich. Heizung, Waschraum und Partyraum erweitern das Platzangebot dieses Hauses. Eine Gaszentralheizung entspricht dem Baujahr.
Einziehen und wohlfühlen! Kein Renovierungsstau!
Lage
Grafenau bietet ihnen neben den Schularten, Grund- Mittel- und Realschule auch ein Gymnasium. Ansonsten sind sowohl viele Einkaufsmöglichkeiten wie Ärzte und Klinikum vor Ort.
Auch Freizeitmöglichkeiten wie Wellenbad, Tennishalle, Rodelbahn machen Grafenau zu einem sehr attraktiven Ort für Familien.
Auch Freizeitmöglichkeiten wie Wellenbad, Tennishalle, Rodelbahn machen Grafenau zu einem sehr attraktiven Ort für Familien.
Kosten
Kaufpreis:
265.000 Euro
Preis/m²:
2.500 Euro
Provision für Käufer:
3,57 % (Prozent des Kaufpreises inkl. Mwst ¹)
Energie
Energieausweis:
Energieverbrauchsausweis
Heizungsart:
Zentralheizung
Heizungsbefeuerung:
Gas
Energieverbrauch:
139 kWh/(m²*a)
Energieeffizienz:
E
Sonstiges
Sämtliche Angaben beruhen auf Angaben des Verkäufers und wurden von GARANT nicht geprüft. Hierfür haftet GARANT nicht.
¹ inkl. 19% Mwst. Deutschland (20% in Österreich)
¹ inkl. 19% Mwst. Deutschland (20% in Österreich)
Energieverbrauchsausweis
Energiekennwert: 139,00 kWh/(qm*a)
Energieeffizienz: Klasse E (<160)
Heizung: Zentralheizung mit Gas
Baujahr laut Energieausweis: 1992
1 x Garage