Einfamilienhaus
90768 Fürth
4 Zimmer
ca. 116 m2 Wohnfläche
1972 Baujahr
3,57 % Provision inkl. ges. MwSt.
698.000 Euro
Ausstattung
Gäste-WC
Einbauküche
Keller
Balkon
Objektnummer:
375.029
Grundstückfläche:
ca. 770 m2
Zimmeranzahl:
4
Garage/Stellplatz:
1 Garage
Bezugsfrei ab:
sofort
Der Bungalow verfügt über ca. 116 m² Wohnfläche
auf zwei Ebenen und bietet zusätzlich bewohnbare
Räume im Souterrain/Keller.
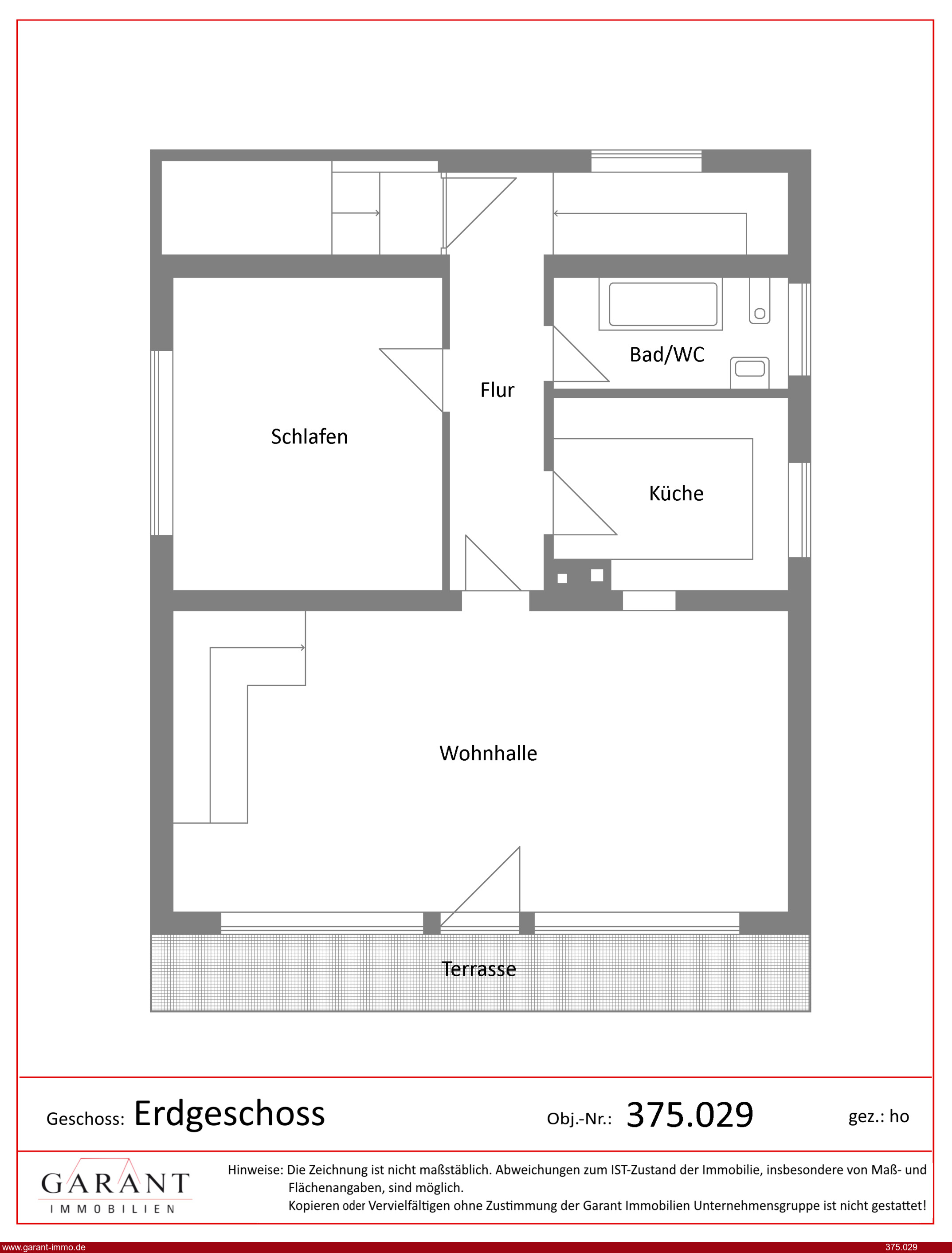
* Erdgeschoss:
Schlafzimmer, Flur, Küche/Einbauküche,
Bad mit Badewanne und WC,
großzügige, nach oben offene Wohnhalle
mit beeindruckender Galerie
* Obergeschoss:
Luftraum zur Wohnhalle, Kinderzimmer,
weiteres Zimmer, Bad mit WC, Balkon
* Souterrain/Keller:
Hausarbeitsraum, WC,
Hobbyraum (bisher wohnlich genutzt)
Der liebevoll angelegte Garten ist gut eingewachsen, mit schönem Baumbestand und sehr gepflegt.
Die große Terrasse lädt zum Entspannen und Verweilen ein. Eine Garage mit elektrischem Rolltor ist ebenfalls vorhanden.
Fenster und Balkontüren wurden ca. 2012 erneuert. Die Öl-Zentralheizung ist voll funktionsfähig, 2012 wurden Kessel/Steuerung erweitert. Die Fenster sind zweifach verglast. Separate WCs auf mehreren Ebenen.
auf zwei Ebenen und bietet zusätzlich bewohnbare
Räume im Souterrain/Keller.
* Erdgeschoss:
Schlafzimmer, Flur, Küche/Einbauküche,
Bad mit Badewanne und WC,
großzügige, nach oben offene Wohnhalle
mit beeindruckender Galerie
* Obergeschoss:
Luftraum zur Wohnhalle, Kinderzimmer,
weiteres Zimmer, Bad mit WC, Balkon
* Souterrain/Keller:
Hausarbeitsraum, WC,
Hobbyraum (bisher wohnlich genutzt)
Der liebevoll angelegte Garten ist gut eingewachsen, mit schönem Baumbestand und sehr gepflegt.
Die große Terrasse lädt zum Entspannen und Verweilen ein. Eine Garage mit elektrischem Rolltor ist ebenfalls vorhanden.
Fenster und Balkontüren wurden ca. 2012 erneuert. Die Öl-Zentralheizung ist voll funktionsfähig, 2012 wurden Kessel/Steuerung erweitert. Die Fenster sind zweifach verglast. Separate WCs auf mehreren Ebenen.
Objektbeschreibung
Dieser gepflegte Bungalow aus dem Jahr 1972 befindet sich in Vach, einem beliebten Stadtteil im Nordwesten von Fürth und überzeugt durch seine ruhige Wohnlage bei gleichzeitig hervorragender Infrastruktur.
Gehen wir besichtigen!
Gehen wir besichtigen!
Lage
Das Klinikum, Bushaltestellen, Grundschule, Gymnasien, Kindergärten, Kinderkrippe, Ärzte, Apotheke, Supermärkte, Banken, Tankstellen und weitere Einrichtungen des täglichen Bedarfs befinden sich in unmittelbarer Nähe.
Der S-Bahnhof Vach sowie eine gute Busanbindung sorgen für eine schnelle Erreichbarkeit der Fürther Innenstadt sowie der Städte Erlangen und Herzogenaurach.
Vach ist ein traditionsreiches fränkisches Straßendorf mit rund 6.000 Einwohnern. Besonders sehenswert sind die Kirche St. Matthäus, das Patrizierschloss und die historische Mühle. Die verkehrsgünstige Lage am Schnittpunkt der Straßen von Fürth, Erlangen und Herzogenaurach macht den Stadtteil besonders attraktiv.
Der S-Bahnhof Vach sowie eine gute Busanbindung sorgen für eine schnelle Erreichbarkeit der Fürther Innenstadt sowie der Städte Erlangen und Herzogenaurach.
Vach ist ein traditionsreiches fränkisches Straßendorf mit rund 6.000 Einwohnern. Besonders sehenswert sind die Kirche St. Matthäus, das Patrizierschloss und die historische Mühle. Die verkehrsgünstige Lage am Schnittpunkt der Straßen von Fürth, Erlangen und Herzogenaurach macht den Stadtteil besonders attraktiv.
Kosten
Kaufpreis:
698.000 Euro
Preis/m²:
6.017,24 Euro
Provision für Käufer:
3,57 % (Prozent des Kaufpreises inkl. Mwst ¹)
Energie
Energieausweis:
Kein Energieausweis vorhanden
Heizungsart:
Zentralheizung
Heizungsbefeuerung:
Öl
Sonstiges
Sämtliche Angaben beruhen auf Angaben des Verkäufers und wurden von GARANT nicht geprüft. Hierfür haftet GARANT nicht.
¹ inkl. 19% Mwst. Deutschland (20% in Österreich)
¹ inkl. 19% Mwst. Deutschland (20% in Österreich)
1 x Garage