Einfamilienhaus
84513 Erharting
5 Zimmer
ca. 200 m2 Wohnfläche
1996 Baujahr
3,57 % Provision inkl. ges. MwSt.
830.000 Euro
A+
A
B
C
D
E
F
G
H
84 kWh/(m²*a)
Ausstattung
Gäste-WC
Einbauküche
Keller
Balkon
Objektnummer:
644.722
Grundstückfläche:
ca. 1776 m2
Zimmeranzahl:
5
Anzahl Bäder:
1
Garage/Stellplatz:
1 Garage
Bezugsfrei ab:
nach Absprache
* Fußbodenheizung in allen Etagen
* offene Rundtreppe in alle Etagen
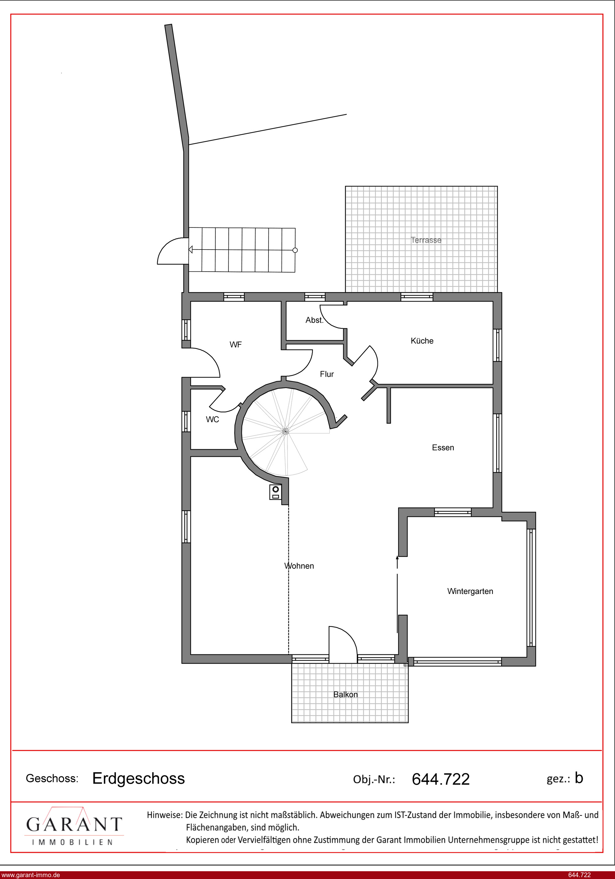
* großzügiger Wohn- und Essbereich, teilweise mit Sichtdachstuhl
* großer Wintergarten mit Blick in den Garten
* Galerie im Dachgeschoss mit Balkon
* Wohnküche mit Speisekammer und Zugang zur
großen Ost-Terrasse
* Rundpool im liebevoll angelegten Garten
* Garage, Carport und weitere Stellplätze
* offene Rundtreppe in alle Etagen
* großzügiger Wohn- und Essbereich, teilweise mit Sichtdachstuhl
* großer Wintergarten mit Blick in den Garten
* Galerie im Dachgeschoss mit Balkon
* Wohnküche mit Speisekammer und Zugang zur
großen Ost-Terrasse
* Rundpool im liebevoll angelegten Garten
* Garage, Carport und weitere Stellplätze
Objektbeschreibung
Dieses außergewöhnliche Einfamilienhaus wurde 1996 in massiver Bauweise errichtet und überzeugt durch seine extravagante Architektur, die offene Gestaltung und eine lichtdurchflutete Atmosphäre. Das Anwesen befindet sich in exklusiver Hanglage und bietet über eine private Zufahrt viel Privatsphäre. Auf rund 260 m² Wohn- und Nutzfläche erwarten Sie offene Grundrisse, eine elegante Rundtreppe, großzügige Wohn- und Essbereiche sowie ein eindrucksvoller Sichtdachstuhl. Der große Wintergarten und die Galerie im Dachgeschoss mit Balkon unterstreichen den besonderen Charakter des Hauses.
Das ca. 1.776 m² große Grundstück bietet reichlich Platz für Erholung, Gartenfreunde oder Freizeitgestaltung. Der Pool sowie die großzügigen Terrassenflächen laden zum Entspannen und Genießen ein.
Das Haus eignet sich ideal für Familien, die das Besondere suchen und Wert auf eine außergewöhnliche Architektur, modernen Komfort und ein großzügiges Grundstück legen.
Alles in allem ein Haus mit Wohlfühlcharakter! Riskieren Sie einen Blick von innen und außen, um sich einen eigenen und persönlichen Eindruck zu verschaffen.
Vereinbaren Sie noch heute einen Besichtigungstermin! 08031/58 940-0.
Das ca. 1.776 m² große Grundstück bietet reichlich Platz für Erholung, Gartenfreunde oder Freizeitgestaltung. Der Pool sowie die großzügigen Terrassenflächen laden zum Entspannen und Genießen ein.
Das Haus eignet sich ideal für Familien, die das Besondere suchen und Wert auf eine außergewöhnliche Architektur, modernen Komfort und ein großzügiges Grundstück legen.
Alles in allem ein Haus mit Wohlfühlcharakter! Riskieren Sie einen Blick von innen und außen, um sich einen eigenen und persönlichen Eindruck zu verschaffen.
Vereinbaren Sie noch heute einen Besichtigungstermin! 08031/58 940-0.
Lage
Das Grundstück befindet sich in zentrumsnaher, bevorzugter Randlage am östlichen Ortsrand von Erharting, eingebettet in ein neu erschlossenes, ruhiges Siedlungsgebiet.
Die Gemeinde Erharting liegt im südostoberbayerischen Alpenvorland, zwischen den Isen- und Inntalniederungen. Entfernungen zu den wichtigsten Orten:
ca. 7 km nordöstlich von Mühldorf am Inn
ca. 12 km südlich von Neumarkt-St. Veit
ca. 11 km nordwestlich von Neuötting
ca. 13 km westlich von Altötting
ca. 86 km östlich von München
Infrastruktur & Verkehrsanbindung:
Autobahn: Die A94 verläuft südlich von Erharting und gewährleistet mit den Anschlussstellen Mühldorf-Nord und Töging eine schnelle Verbindung nach München sowie in Richtung Passau.
ÖPNV: In Erharting-Rohrbach befindet sich ein Bahnhof der Südostbayernbahn (Strecke Mühldorf-Neumarkt-St. Veit) ideal für Pendler und Nutzer des regionalen Bahnverkehrs.
Landschaft & Naherholung:
Die Lage am Siedlungsrand bietet ruhiges Wohnen mit unmittelbarer Nähe zur Natur. Sanfte Hügel, weitläufige Acker- und Grünflächen sowie die dörflich-gemütliche Struktur prägen das Umfeld. Zahlreiche Freizeit- und Erholungsmöglichkeiten finden sich in der umliegenden Region.
Die Gemeinde Erharting liegt im südostoberbayerischen Alpenvorland, zwischen den Isen- und Inntalniederungen. Entfernungen zu den wichtigsten Orten:
ca. 7 km nordöstlich von Mühldorf am Inn
ca. 12 km südlich von Neumarkt-St. Veit
ca. 11 km nordwestlich von Neuötting
ca. 13 km westlich von Altötting
ca. 86 km östlich von München
Infrastruktur & Verkehrsanbindung:
Autobahn: Die A94 verläuft südlich von Erharting und gewährleistet mit den Anschlussstellen Mühldorf-Nord und Töging eine schnelle Verbindung nach München sowie in Richtung Passau.
ÖPNV: In Erharting-Rohrbach befindet sich ein Bahnhof der Südostbayernbahn (Strecke Mühldorf-Neumarkt-St. Veit) ideal für Pendler und Nutzer des regionalen Bahnverkehrs.
Landschaft & Naherholung:
Die Lage am Siedlungsrand bietet ruhiges Wohnen mit unmittelbarer Nähe zur Natur. Sanfte Hügel, weitläufige Acker- und Grünflächen sowie die dörflich-gemütliche Struktur prägen das Umfeld. Zahlreiche Freizeit- und Erholungsmöglichkeiten finden sich in der umliegenden Region.
Kosten
Kaufpreis:
830.000 Euro
Preis/m²:
4.150 Euro
Provision für Käufer:
3,57 % (Prozent des Kaufpreises inkl. Mwst ¹)
Energie
Energieausweis:
Energieverbrauchsausweis
Heizungsart:
Zentralheizung
Heizungsbefeuerung:
Öl
Energieverbrauch:
84 kWh/(m²*a)
Energieeffizienz:
C
Sonstiges
Sämtliche Angaben beruhen auf Angaben des Verkäufers und wurden von GARANT nicht geprüft. Hierfür haftet GARANT nicht.
¹ inkl. 19% Mwst. Deutschland (20% in Österreich)
¹ inkl. 19% Mwst. Deutschland (20% in Österreich)
Energieverbrauchsausweis
Energiekennwert: 84,22 kWh/(qm*a)
Energieeffizienz: Klasse C (<100)
Heizung: Zentralheizung mit Öl
Baujahr laut Energieausweis: 1996
1 x Garage, 2 x Carport, 2 x Stellplatz außen