Wohn- und Geschäftshaus
78736 Epfendorf
12 Zimmer
ca. 250 m2 Wohnfläche
1936 Baujahr
3,57 % Provision inkl. ges. MwSt.
595.000 Euro
A+
A
B
C
D
E
F
G
H
295 kWh/(m²*a)
Ausstattung
Gäste-WC
Einbauküche
Keller
Objektnummer:
454.183
Grundstückfläche:
ca. 30000 m2
Zimmeranzahl:
12
Schlafzimmeranzahl:
10
Anzahl Bäder:
8
Garage/Stellplatz:
5 Garage
Bezugsfrei ab:
nach Absprache
* acht Wohnungen mit je einer Küche und Bad
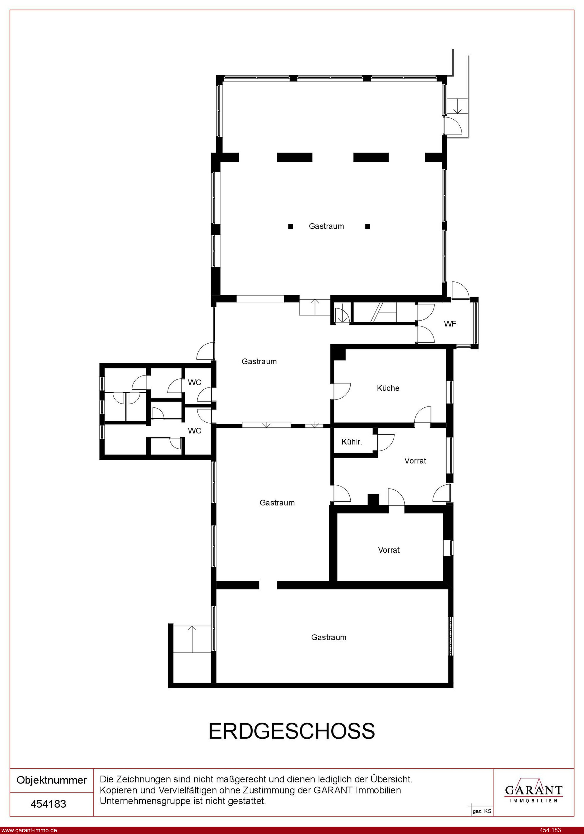
* Gastronomiebereich mit Küche, Abstellraum
* Kellerbar
* Gastronomiebereich mit Küche, Abstellraum
* Kellerbar
Objektbeschreibung
... bietet das 1936 erbaute Gebäude. Zurzeit umfasst das Gebäude acht Wohnungen. Aufgeteilt von 1 Zimmer-Appartments bis zur Vierzimmerwohnung. Sechs Wohnungen sind aktuell vermietet, eine Wohnung nutzt der Eigentümer. Darüber hinaus bietet dieses Objekt einen großen Gastraum mit Sonnenterrasse, Küche, Abstellraum und einer geräumigen Kellerbar. Der Gewerbeteil wurde viele Jahre erfolgreich bewirtschaftet, ist jedoch still gelegt. Dieser Bereich muss renoviert - und kann dann wieder in Betrieb genommen werden.
Dieses Objekt würde sich recht gut für eine Gastronomie, Café, Bar, Jugendherberge, Unterkunft für Freizeiten, Treffpunkt für Jung und Alt eignen hier kann man seinen Ideen freien Lauf lassen! Auch der Außenbereich bietet viel Platz und Raum für verschiedene Aktivitäten. Das Objekt befindet sich in Alleinlage, man kann die Natur erkunden und die Seele baumeln lassen, dem Plätschern der Quelle lauschen und das Zwitschern der Vögel genießen.
Ein großer Bühnenraum kann noch ausgebaut werden.
Der Randstreifen von der Zufahrt ist eingeschottert und bietet Platz für ca. 80 Autos, sowie fünf Garagen stehen bereit um weitere Vorräte,... unterzubringen.
Zu diesem Objekt gehört ein Stück Wald, das ebenfalls mit im Preis drin ist und für die Zukunft integriert werden kann.
Gerne zeige ich Ihnen dieses Objekt persönlich!
Dieses Objekt würde sich recht gut für eine Gastronomie, Café, Bar, Jugendherberge, Unterkunft für Freizeiten, Treffpunkt für Jung und Alt eignen hier kann man seinen Ideen freien Lauf lassen! Auch der Außenbereich bietet viel Platz und Raum für verschiedene Aktivitäten. Das Objekt befindet sich in Alleinlage, man kann die Natur erkunden und die Seele baumeln lassen, dem Plätschern der Quelle lauschen und das Zwitschern der Vögel genießen.
Ein großer Bühnenraum kann noch ausgebaut werden.
Der Randstreifen von der Zufahrt ist eingeschottert und bietet Platz für ca. 80 Autos, sowie fünf Garagen stehen bereit um weitere Vorräte,... unterzubringen.
Zu diesem Objekt gehört ein Stück Wald, das ebenfalls mit im Preis drin ist und für die Zukunft integriert werden kann.
Gerne zeige ich Ihnen dieses Objekt persönlich!
Lage
Trichtingen ist ein Teilort der Gemeinde Epfendorf am Neckar im Landkreis Rottweil und liegt eingebettet zwischen Schwarzwald im Westen und Schwäbischer Alb im Osten. Der Ort blickt auf eine jahrhundertelange Geschichte zurück und weist einen ländlich geprägten Ortskern auf. In den letzten Jahren bewog die idyllische Lage abseits der städtischen Hektik viele junge Familien, sich in Trichtingen niederzulassen, sodass eine ausgewogene und intakte Bevölkerungsstruktur vorhanden ist, auf der die weitere Dorfentwicklung zukunftsorientiert aufbauen kann. Ein reges Vereinsleben sorgt für Abwechslung im täglichen Leben. Die verschiedenen ortsansässigen Gewerbebetriebe tragen ebenfalls dazu bei. Kindergarten und Grundschule sind vor Ort. Sämtliche Einkaufsmöglichkeiten, Ärzte, Apotheken,.. befinden sich im ca. 7 km entfernten Oberndorf am Neckar.
Kosten
Kaufpreis:
595.000 Euro
Preis/m²:
2.380 Euro
Provision für Käufer:
3,57 % (Prozent des Kaufpreises inkl. Mwst ¹)
Energie
Energieausweis:
Energiebedarfsausweis
Heizungsart:
Zentralheizung
Heizungsbefeuerung:
Öl
Energieverbrauch:
295 kWh/(m²*a)
Energieeffizienz:
H
Sonstiges
Sämtliche Angaben beruhen auf Angaben des Verkäufers und wurden von GARANT nicht geprüft. Hierfür haftet GARANT nicht.
¹ inkl. 19% Mwst. Deutschland (20% in Österreich)
¹ inkl. 19% Mwst. Deutschland (20% in Österreich)
Energiebedarfsausweis
Energiekennwert: 295,40 kWh/(qm*a)
Energieeffizienz: Klasse H (>250)
Heizung: Zentralheizung mit Öl
Baujahr laut Energieausweis: 1963
5 x Garage, 80 x Stellplatz außen