Wohn- und Geschäftshaus
06905 Bad Schmiedeberg
9 Zimmer
ca. 329 m2 Wohnfläche
1850 Baujahr
3,57 % Provision inkl. ges. MwSt.
199.000 Euro
Ausstattung
Keller
Objektnummer:
451.176
Grundstückfläche:
ca. 664 m2
Zimmeranzahl:
9
Schlafzimmeranzahl:
5
Anzahl Bäder:
5
Bezugsfrei ab:
nach Absprache
Drei der insgesamt 5 Wohnungen verteilen sich im Obergeschoss und sind über einen Treppenaufgang erreichbar. Dieser führt weiter bis ins Dachgeschoss mit zwei größeren Wohnungen. Ein kleiner Gewölbekeller von ca. 12 qm ist unter dem Hinterhaus vorhanden. Die Wärme- und Warmwasserversorgung erfolgt über eine Erdgas-Zentralheizung.
Objektbeschreibung
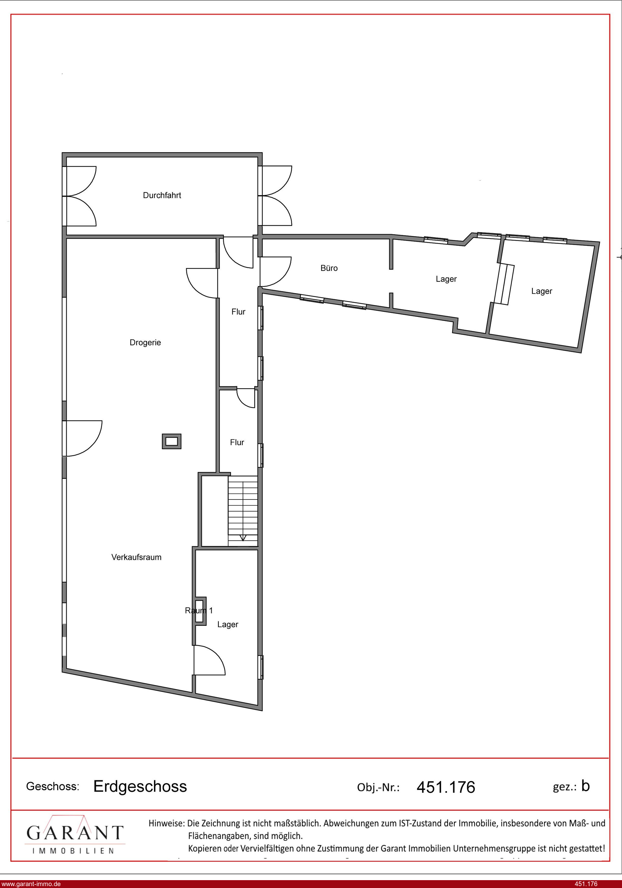
Im Zentrum des staatlich anerkannten Moor-, Mineral- und Kneippheilbad Bad Schmiedeberg wird ein geräumiges Wohn- und Geschäftshaus zum Verkauf angeboten. Der Erdgeschossbereich wurde zu einem modernen Ladengeschäft ausgebaut und beherbergte bis vor Kurzem eine Drogerie auf insgesamt ca. 226 qm. Ober- und Dachgeschoss umfassen eine Wohnfläche von insgesamt ca. 329 qm für 5 Wohneinheiten, welche sich teilweise in der Ausbauphase befinden. Ansonsten ist der Wohnbereich renovierungsbedürftig. Das östliche Dach des unter Denkmalschutz stehenden Gebäudes wurde 2019 neu eingedeckt. Über eine Durchfahrt gelangt man in den Hinterhof mit Garagen und Grünfläche, welcher jedoch viele Jahre nicht genutzt wurde.
Lage
Die Stadt Bad Schmiedeberg liegt im Naturpark Dübener Heide. Bis zur Kreisstadt Lutherstadt Wittenberg sind es in nördlicher Richtung über die Bundesstraße B2 ca. 27 km, über Bad Düben wird der Ortseingang Leipzig (Neue Messe) nach ca. 50 km erreicht. Von dort sind es über die Bundesautobahn A14 nur wenige Kilometer bis zu den Werksniederlassungen von BMW und Porsche sowie zum Flughafen Halle/Leipzig mit seinem Frachtdrehkreuz von DHL.
Kosten
Kaufpreis:
199.000 Euro
Preis/m²:
604,86 Euro
Provision für Käufer:
3,57 % (Prozent des Kaufpreises inkl. Mwst ¹)
Energie
Energieausweis:
Kein Energieausweis vorhanden
Heizungsart:
Zentralheizung
Heizungsbefeuerung:
Gas
Sonstiges
Sämtliche Angaben beruhen auf Angaben des Verkäufers und wurden von GARANT nicht geprüft. Hierfür haftet GARANT nicht.
¹ inkl. 19% Mwst. Deutschland (20% in Österreich)
¹ inkl. 19% Mwst. Deutschland (20% in Österreich)
Das Landesamt für Denkmalpflege und Archäologie Sachsen-Anhalt hat das Grundstück mit Bebauung als Teil des Denkmalbereichs "Altstadt" gewürdigt und daraufhin die Eintragung in das Denkmalverzeichnis vollzogen. Der ebenerdige Ladenbereich würde sich zukünftig z.B. als Handelsgeschäft für die Dinge des täglichen Bedarfs, Radladen mit Werkstatt oder als Geschäft für Pferdesportartikel anbieten.