Doppelhaushälfte
74858 Aglasterhausen
5 Zimmer
ca. 146 m2 Wohnfläche
1990 Baujahr
3,57 % Provision inkl. ges. MwSt.
295.000 Euro
A+
A
B
C
D
E
F
G
H
84 kWh/(m²*a)
Ausstattung
Gäste-WC
Keller
Balkon
Vermietet
Objektnummer:
753.179
Grundstückfläche:
ca. 160 m2
Zimmeranzahl:
5
Schlafzimmeranzahl:
3
Anzahl Bäder:
2
Bezugsfrei ab:
nach Absprache
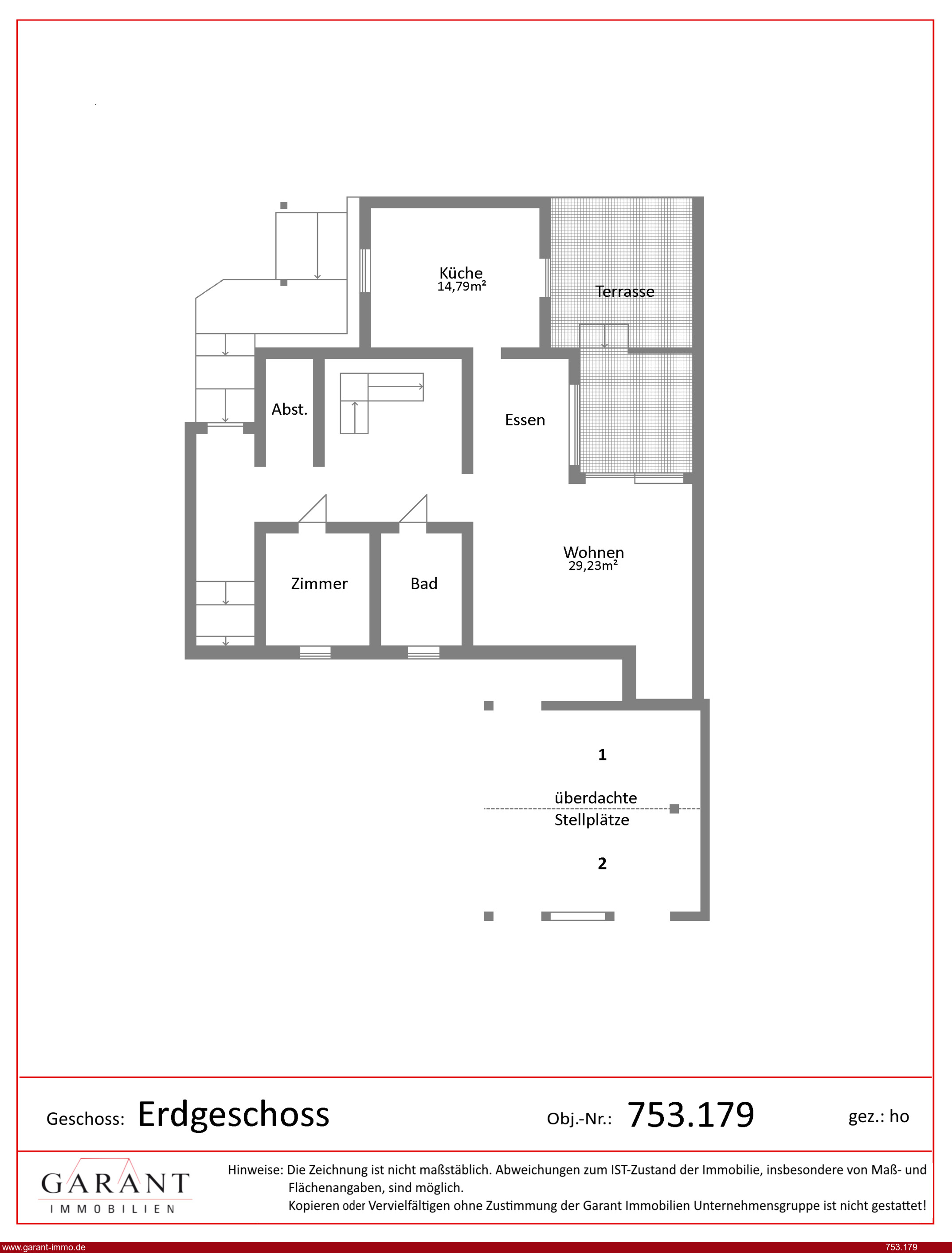
EG: Flur, Zimmer, Abstellkammer, Gäste Bad, Wohn-/Esszimmer,
Küche, Terrasse
OG: Flur, 2x Kinderzimmer, Schlafzimmer, Badezimmer,
2 Balkone
Küche, Terrasse
OG: Flur, 2x Kinderzimmer, Schlafzimmer, Badezimmer,
2 Balkone
Objektbeschreibung
Zum Verkauf steht eine gepflegte Doppelhaushälfte aus dem Baujahr 1990 mit einer Wohnfläche von ca. 146 qm. Das Grundstück misst etwa 160 qm. Die Immobilie ist umfassend modernisiert worden, unter anderem wurden Bodenbeläge und Leitungen seit den 2000er Jahren bis heute erneuert. Das Haus befindet sich in einem guten und gepflegten Zustand. Aktuell ist die Immobilie vermietet, der Mietvertrag endet spätestens zum 31. Oktober, sodass ein Einzug zum Jahresende möglich ist. Der Eigentümer wird die Fassade fertig verputzen lassen und anschließend die Fassade komplett streichen, sobald eine Kaufzusage vorliegt. Zudem liegt eine Liste vor mit allen Maßnahmen in den letzten Jahren, diese wird bei der Besichtigung vorgelegt.
Bitte beachten Sie, dass es keinen eigenen Stellplatz gibt. Öffentliche Parkmöglichkeiten befinden sich an der Straße. Zudem ist keine Gartennutzung möglich, jedoch verfügt die Immobilie über eine schöne Terrasse sowie 2 Balkone.
Fragen Sie uns nach den Details. Gerne können Sie einen Termin vor Ort vereinbaren.
Bezugsfertig mit viel Platz.
Bitte beachten Sie, dass es keinen eigenen Stellplatz gibt. Öffentliche Parkmöglichkeiten befinden sich an der Straße. Zudem ist keine Gartennutzung möglich, jedoch verfügt die Immobilie über eine schöne Terrasse sowie 2 Balkone.
Fragen Sie uns nach den Details. Gerne können Sie einen Termin vor Ort vereinbaren.
Bezugsfertig mit viel Platz.
Lage
Das Objekt befindet sich in zentraler Lage von Aglasterhausen. Dank guter Verkehrsanbindung sind Dinge des alltäglichen Lebens schnell und bequem erreichbar. Auch die Nähe zu größeren Städten wie Mosbach, Sinsheim, Heidelberg usw ist mit dem Auto in kurzer Zeit zu erreichen.
Kosten
Kaufpreis:
295.000 Euro
Preis/m²:
2.020,55 Euro
Provision für Käufer:
3,57 % (Prozent des Kaufpreises inkl. Mwst ¹)
Energie
Energieausweis:
Energieverbrauchsausweis
Heizungsart:
Elektro-Heizung
Heizungsbefeuerung:
Strom
Energieverbrauch:
84 kWh/(m²*a)
Energieeffizienz:
C
Sonstiges
Sämtliche Angaben beruhen auf Angaben des Verkäufers und wurden von GARANT nicht geprüft. Hierfür haftet GARANT nicht.
¹ inkl. 19% Mwst. Deutschland (20% in Österreich)
¹ inkl. 19% Mwst. Deutschland (20% in Österreich)
Energieverbrauchsausweis
Energiekennwert: 84,57 kWh/(qm*a)
Energieeffizienz: Klasse C (<100)
Heizung: Elektro-Heizung mit Strom
Baujahr laut Energieausweis: 1990
* kernsaniert
* Vermietet (Jahresvertrag)
* neue elektrische Heizkörper in jedem Raum App steuerbar
* Im OG Bad Fußbodenheizung elektrisch.
* Kamin
* kein Stellplatz
* kein Garten
* zentrale Ortslage
* Vorbereitung für eine PV Anlage (Leitungen zum Dach gelegt)