Verkaufsfläche/Halle
94518 Spiegelau
ca. 1363 m2
1960 Baujahr
298.000 Euro
Ausstattung
Objektnummer:
622.021
Grundstückfläche:
ca. 1363 m2
Gesamtfläche:
ca. 430 m2
Nutzfläche:
ca. 430 m2
Verkaufsfläche:
ca. 400 m2
Nebenfläche:
ca. m2
Bezugsfrei ab:
sofort
- große Verkaufsfläche
- Nebenräume
- sanitäre Anlagen
- Parkplätze
- Gasheizung
- Nebenräume
- sanitäre Anlagen
- Parkplätze
- Gasheizung
Objektbeschreibung
Angeboten wird hier eine ca. 430 qm große Gewerbehalle/Verkaufsfläche, die ursprünglich als Verkaufsfläche diente. Das Gewerbeobjekt steht in einem Mischgebiet in zentraler Lage von Spiegelau. Das Gebäude kann vielfältig genutzt werden. Hier kann sich neues Gewerbe ansiedeln, aber auch Wohnraum geschaffen werden.
Das Gebäude verfügt über neuwertige Kundentoiletten sowie über abgeteilte Büroflächen. Der größte Teil der Nutzfläche ist nicht unterteilt und bietet somit die Möglichkeit der individuellen Gestaltung. Geheizt wird mit einer Gasheizung.
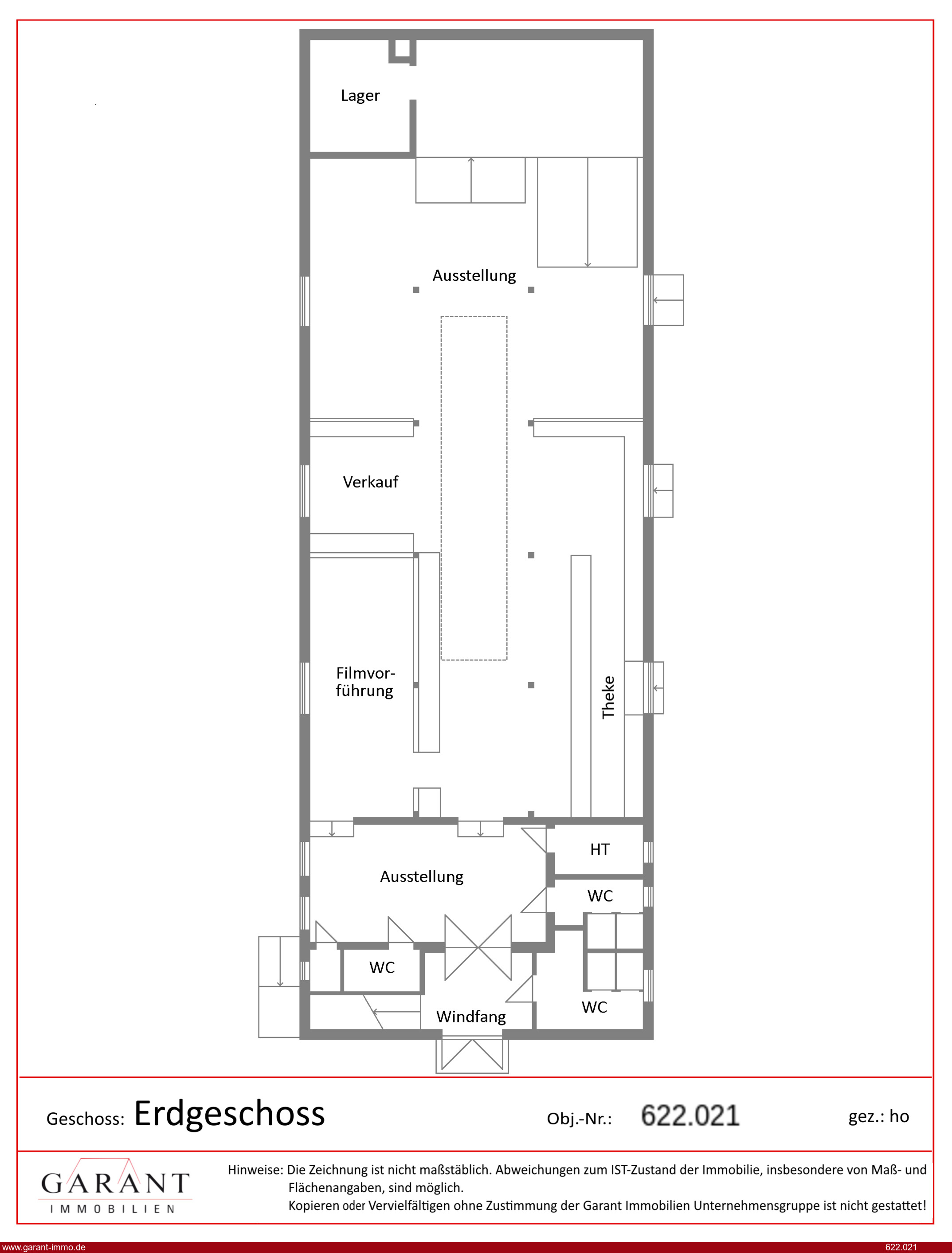
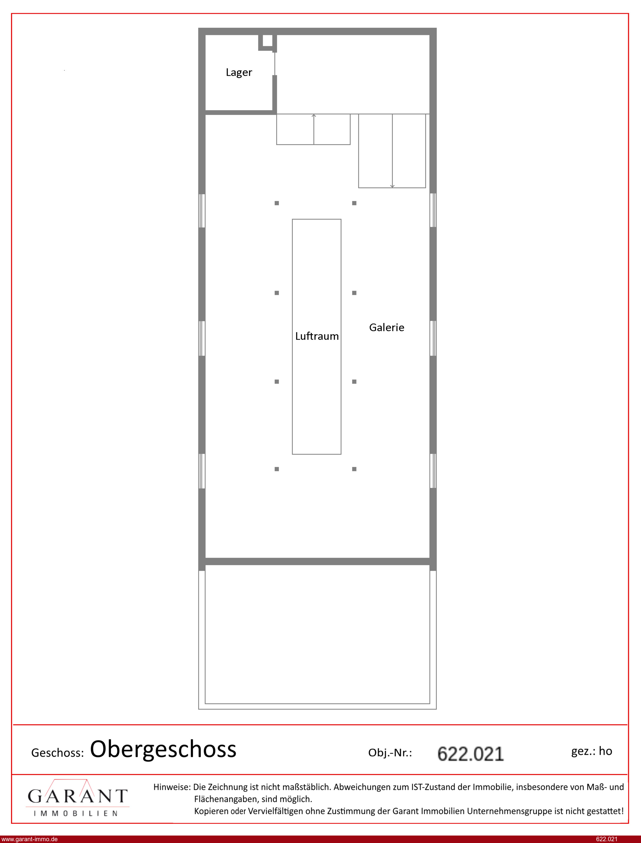
Im Erdgeschoss bietet das Gebäude auf insgesamt ca. 260 qm mehrere Nebenräume und eine große Ladenfläche. Eine aus einer Holzkonstruktion gebaute Galerie (im ursprünglichen Bauplan wurde hier eine ca. 60 qm große Wohnung vorgesehen), bildet eine zweite Ebene, die ebenfalls vielseitig genutzt aber auch entfernt werden kann.
Mögliche Nutzungsmöglichkeiten wären denkbar:
- Getränkemarkt
- Galerie/Ausstellungsfläche
- Wohneinheiten
- Einzelhandel
- Handwerksbetrieb
und vieles mehr!
Parkplätze befinden sich auf jeder Seite des Objekts.
Geschäftsräume im Mischgebiet von Spiegelau!
Das Gebäude verfügt über neuwertige Kundentoiletten sowie über abgeteilte Büroflächen. Der größte Teil der Nutzfläche ist nicht unterteilt und bietet somit die Möglichkeit der individuellen Gestaltung. Geheizt wird mit einer Gasheizung.
Im Erdgeschoss bietet das Gebäude auf insgesamt ca. 260 qm mehrere Nebenräume und eine große Ladenfläche. Eine aus einer Holzkonstruktion gebaute Galerie (im ursprünglichen Bauplan wurde hier eine ca. 60 qm große Wohnung vorgesehen), bildet eine zweite Ebene, die ebenfalls vielseitig genutzt aber auch entfernt werden kann.
Mögliche Nutzungsmöglichkeiten wären denkbar:
- Getränkemarkt
- Galerie/Ausstellungsfläche
- Wohneinheiten
- Einzelhandel
- Handwerksbetrieb
und vieles mehr!
Parkplätze befinden sich auf jeder Seite des Objekts.
Geschäftsräume im Mischgebiet von Spiegelau!
Lage
Die Gewerbeeinheit befindet sich auf einer gut frequentierten Straße, die Frauenau mit Grafenau verbindet. Spiegelau gehört zum Landkreis Freyung-Grafenau und ist ein anerkannter Erholungsort. Dort befindet sich die berühmte Glasstraße die von Neustadt an der Waldnaab über Spiegelau bis nach Passau führt.
Kosten
Kaufpreis:
298.000 Euro
Preis/m²:
693,02 Euro
Provision für Käufer:
3,57 % (Prozent des Kaufpreises inkl. Mwst ¹)
Energie
Energieausweis:
Kein Energieausweis vorhanden
Heizungsart:
Zentralheizung
Heizungsbefeuerung:
Gas
Sonstiges
Sämtliche Angaben beruhen auf Angaben des Verkäufers und wurden von GARANT nicht geprüft. Hierfür haftet GARANT nicht.
¹ inkl. 19% Mwst. Deutschland (20% in Österreich)
¹ inkl. 19% Mwst. Deutschland (20% in Österreich)