Geschäftsgebäude
73113 Ottenbach
ca. 1200 m2
2009 Baujahr
4,16 % Provision inkl. ges. MwSt.
1.750.000 Euro
Ausstattung
Objektnummer:
209.371
PLZ/Ort:
73113 Ottenbach
Baujahr:
2009
Grundstückfläche:
ca. 1200 m2
Lager-/ Produktionsfläche:
ca. 456 m2
Nutzfläche:
ca. 577 m2
Bezugsfrei ab:
nach Absprache
* Photovoltaikanlage 22 KwP
* Fußbodenheizung
* Klimaanlage
* 8 Büroräume
* Serverraum
* Drucker/Kopierraum
* Empfangsbereich/Zentrale
* ca. 100 qm Lager/Stauraum im Obergeschoss
(Möglichkeit zum Wohnungsausbau für Betriebsleiter/
Geschäftsinhaber vorhanden)
* Fußbodenheizung
* Klimaanlage
* 8 Büroräume
* Serverraum
* Drucker/Kopierraum
* Empfangsbereich/Zentrale
* ca. 100 qm Lager/Stauraum im Obergeschoss
(Möglichkeit zum Wohnungsausbau für Betriebsleiter/
Geschäftsinhaber vorhanden)
Objektbeschreibung
Neuwertiges, werbewirksam gelegenes Gebäude mit großem Hofbereich.
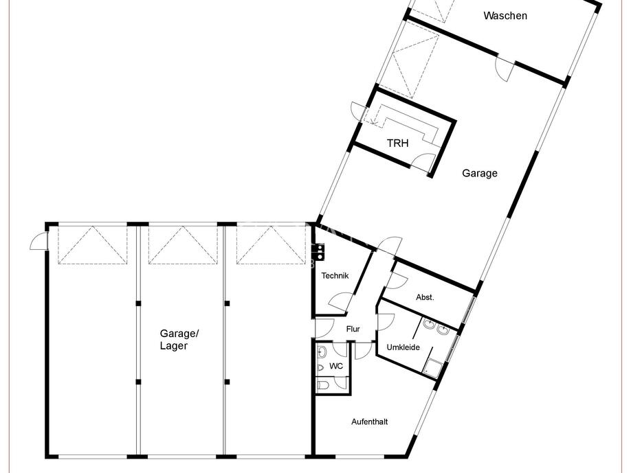
Im Gebäude fünf Rolltore, Werkstattbereich, PKW/LKW-Abstellplätze, Aufenthaltsraum, Umkleideraum mit Waschbecken und Dusche, WC's, Technikraum, Portalwaschanlage, Waschplatte mit Ölabscheider im Außenbereich, kleine Halle mit zwei Rolltoren.
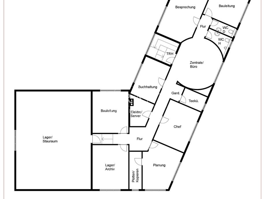
Moderne Heiztechnik mit Fußbodenheizung in der Büroetage.
Im Obergeschoss Bürobereich mit Empfang/Zentrale, Teeküche, Büroräume, Drucker/Kopierraum, Serverraum, Lager/Stauraum, WC's.
Gerne gehen wir besichtigen!
Im Gebäude fünf Rolltore, Werkstattbereich, PKW/LKW-Abstellplätze, Aufenthaltsraum, Umkleideraum mit Waschbecken und Dusche, WC's, Technikraum, Portalwaschanlage, Waschplatte mit Ölabscheider im Außenbereich, kleine Halle mit zwei Rolltoren.
Moderne Heiztechnik mit Fußbodenheizung in der Büroetage.
Im Obergeschoss Bürobereich mit Empfang/Zentrale, Teeküche, Büroräume, Drucker/Kopierraum, Serverraum, Lager/Stauraum, WC's.
Gerne gehen wir besichtigen!
Lage
Gewerbegebiet
Kosten
Kaufpreis:
1.750.000 Euro
Preis/m²:
3.032,93 Euro
Provision für Käufer:
4,16 % (Prozent des Kaufpreises inkl. Mwst ¹)
Energie
Energieausweis:
Energieverbrauchsausweis
Heizungsart:
Zentralheizung
Heizungsbefeuerung:
Gas
Sonstiges
Sämtliche Angaben beruhen auf Angaben des Verkäufers und wurden von GARANT nicht geprüft. Hierfür haftet GARANT nicht.
¹ inkl. 19% Mwst. Deutschland (20% in Österreich)
¹ inkl. 19% Mwst. Deutschland (20% in Österreich)
Energieverbrauchsausweis
Energiekennwert: Strom 16,30 kWh/(qm*a), Wärme 42,36 kWh/(qm*a)
Heizung: Zentralheizung mit Gas
Baujahr laut Energieausweis: 2009