Praxis
80335 München
1958 Baujahr
999.500 Euro
A+
A
B
C
D
E
F
G
H
94 kWh/(m²*a)
Ausstattung
Aufzug
Keller
Objektnummer:
313.008
PLZ/Ort:
80335 München
Baujahr:
1958
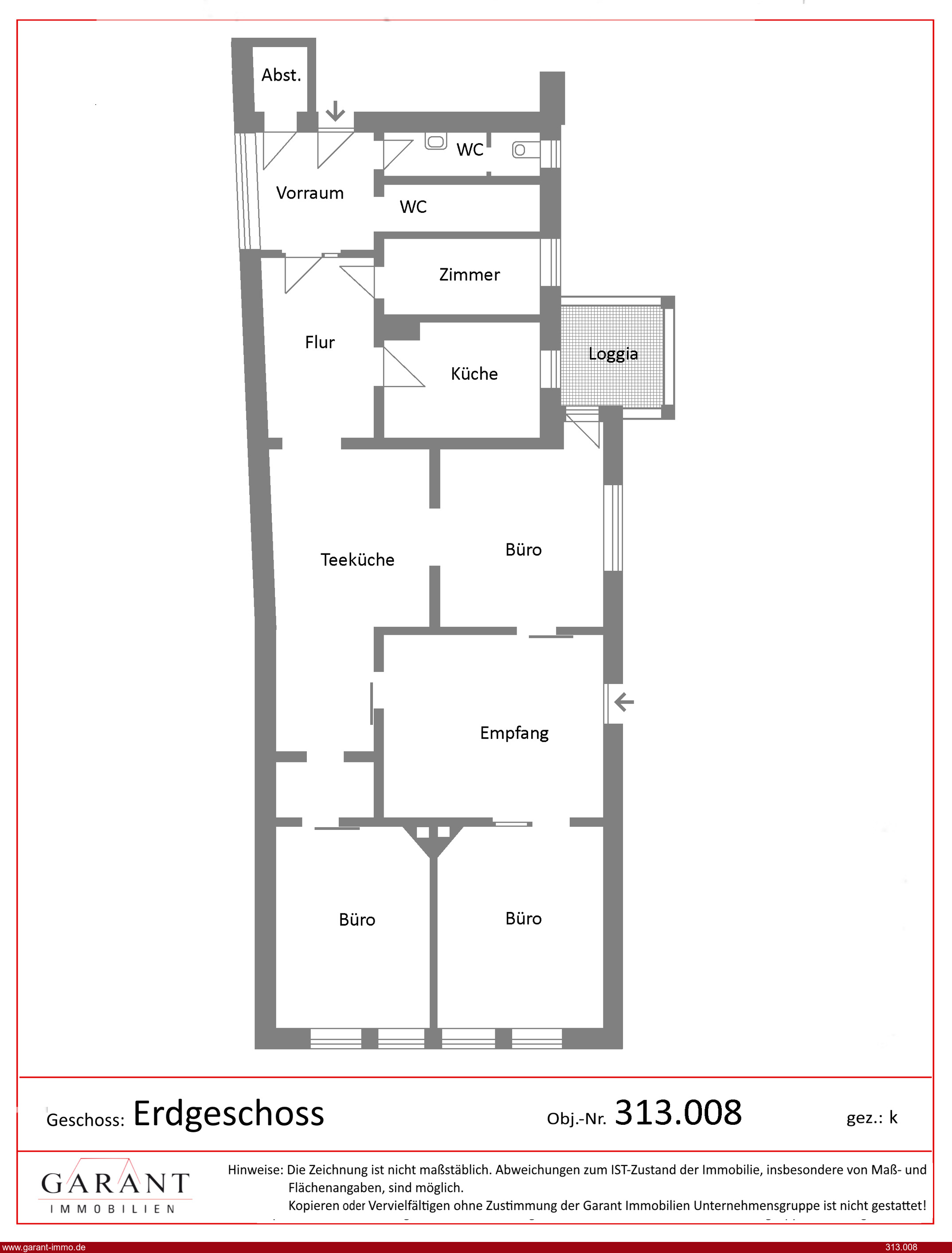
Büro/Praxisfläche:
ca. 170 m2
Nutzfläche:
ca. 170 m2
Bezugsfrei ab:
sofort
* ca. 170 m² flexibel nutzbare Gewerbefläche
* stilvolle, präsentationsstarke Fensterfront
* Rückumwandlung in zwei Wohnungen möglich
* Erdgeschoss eines gepflegten Mehrfamilienhauses
* Toplage in München, ideal für Büro, Praxis,
Showroom, Verkauf oder Wohnnutzung
* stilvolle, präsentationsstarke Fensterfront
* Rückumwandlung in zwei Wohnungen möglich
* Erdgeschoss eines gepflegten Mehrfamilienhauses
* Toplage in München, ideal für Büro, Praxis,
Showroom, Verkauf oder Wohnnutzung
Objektbeschreibung
Diese großzügige, vielseitig nutzbare Gewerbefläche bietet die perfekte Basis für Ihr Unternehmen und auf Wunsch auch Potenzial für Wohnraum!
Im Erdgeschoss eines gepflegten Mehrfamilienhauses gelegen, überzeugt sie mit großzügiger Raumaufteilung, hervorragender Erreichbarkeit und einer stilvollen, präsentationsstarken Fensterfront, die Ihr Geschäft ins rechte Licht rückt.
Mit ca. 170 m² Nutzfläche eröffnet sich ein breites Spektrum an Möglichkeiten: Büro, Praxis, Showroom oder Verkaufsfläche.
Darüber hinaus ist eine Rückumwandlung in zwei Wohnungen möglich, was die Immobilie auch für Kapitalanleger und Eigennutzer besonders attraktiv macht.
Viel Platz, starke Präsenz und auf Wunsch Wohnpotenzial
Im Erdgeschoss eines gepflegten Mehrfamilienhauses gelegen, überzeugt sie mit großzügiger Raumaufteilung, hervorragender Erreichbarkeit und einer stilvollen, präsentationsstarken Fensterfront, die Ihr Geschäft ins rechte Licht rückt.
Mit ca. 170 m² Nutzfläche eröffnet sich ein breites Spektrum an Möglichkeiten: Büro, Praxis, Showroom oder Verkaufsfläche.
Darüber hinaus ist eine Rückumwandlung in zwei Wohnungen möglich, was die Immobilie auch für Kapitalanleger und Eigennutzer besonders attraktiv macht.
Viel Platz, starke Präsenz und auf Wunsch Wohnpotenzial
Lage
Mitten im kulturell lebendigen Stadtteil Maxvorstadt gelegen, profitieren Sie von einer erstklassigen Infrastruktur: renommierte Universitäten, Museen und Galerien prägen das Umfeld.
U- und Straßenbahn, Bus sowie mehrere Parkhäuser sind nur wenige Gehminuten entfernt.
Die zentrale City-Lage garantiert eine hohe Laufkundschaft und optimale Erreichbarkeit für Kunden und Mitarbeiter.
U- und Straßenbahn, Bus sowie mehrere Parkhäuser sind nur wenige Gehminuten entfernt.
Die zentrale City-Lage garantiert eine hohe Laufkundschaft und optimale Erreichbarkeit für Kunden und Mitarbeiter.
Der Fußweg zu den nächsten Öffentlichen Verkehrsmitteln beträgt
5 Minuten.
Kosten
Kaufpreis:
999.500 Euro
Preis/m²:
5.879,41 Euro
Provision für Käufer:
2,97 % (Prozent des Kaufpreises inkl. Mwst ¹)
Energie
Energieausweis:
Energieverbrauchsausweis
Heizungsart:
Fernwärme
Heizungsbefeuerung:
Fernwärme
Energieverbrauch:
94 kWh/(m²*a)
Energieeffizienz:
C
Sonstiges
Sämtliche Angaben beruhen auf Angaben des Verkäufers und wurden von GARANT nicht geprüft. Hierfür haftet GARANT nicht.
¹ inkl. 19% Mwst. Deutschland (20% in Österreich)
¹ inkl. 19% Mwst. Deutschland (20% in Österreich)
Energieverbrauchsausweis
Energiekennwert: 94,70 kWh/(qm*a)
Energieeffizienz: Klasse C (<100)
Heizung: Fernwärme mit Fernwärme
Baujahr laut Energieausweis: 1958